6 bedroom Detached house For Sale

Colliery Lane, Linton, Swadlincote

£825,000 | Available

6 Bedrooms
3 Bathrooms
4 Receptions

Burton Upon Trent

183 High Street, 
Abbey Arcade, 
Burton upon Trent, 
DE14 1HN
Standout Features

Property Description
Robinson House is an impressive executive individually designed detached residence set behind electric gates on a generous and well-established plot in the village of Linton. Sitting centrally within its grounds, this substantial home offers beautifully presented accommodation throughout, including a striking open-plan dining kitchen with granite worktops and integrated appliances, a dual-aspect lounge with French doors to the rear garden, a formal dining room, and a private study.

The first floor features a luxurious principal bedroom suite with dressing area and ensuite shower room, two further double bedrooms, and a stunning five-piece family bathroom with spa Jacuzzi and in-wall TV. The second floor provides a flexible living space ideal for teenagers or extended family, complete with its own WC and kitchenette area. In addition, there is an optional fully self-contained one-bedroom annex above the garage, ideal for guests or independent living. With an integral garage...

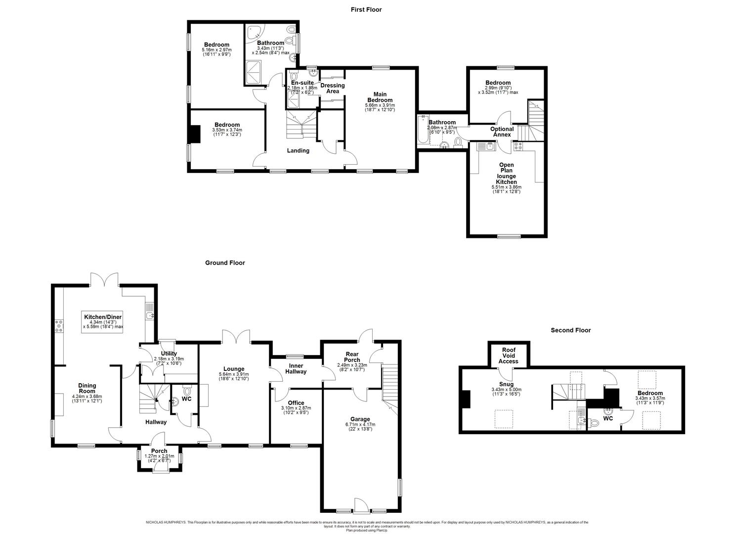
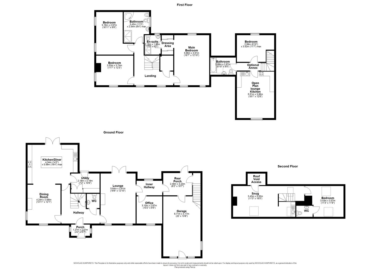
The Accommodation
Robinson House, situated on Colliery Lane in Linton, is an individually designed detached family residence occupying a generous and well-established plot, accessed via double-opening electric gates. Centrally positioned within its grounds, the property immediately presents a sense of exclusivity and grandeur. The internal accommodation opens with a UPVC front entrance door into an enclosed porch, offering useful storage space, UPVC double glazed windows, and a glazed internal door through to a welcoming reception hallway. The hallway features a staircase rising to the upper floors, a built-in understairs storage cupboard, and a front-facing UPVC double glazed window. Off the hallway is a guest cloakroom fitted with WC, hand wash basin, and extractor fan.

A notable highlight of the ground floor is the impressive open-plan dining kitchen, which showcases a broad selection of fitted base cupboards, drawers, and eye-level wall units with striking black granite worktops. A central island unit, also with a shaped granite top, incorporates a breakfast bar and additional storage. Finished with polished porcelain tiled flooring, the kitchen is equipped with a stainless steel Rangemaster cooker offering six gas burners, double oven and grill, with an extractor hood above. Integrated appliances include a dishwasher, microwave, and coffee machine, alongside designated space for an American-style fridge freezer. The space is further enhanced by LED plinth spotlights and ceiling lighting, with French patio doors and windows providing a seamless connection to the extensive rear garden. Open-plan access flows into the formal dining room, complete with oak-effect laminate flooring, feature fireplace, and further access back to the main reception hall.

The dual-aspect lounge is generously proportioned, offering views through French doors to the rear garden and additional windows to the front aspect. With inset spotlights and another feature fireplace, this room blends comfort and elegance. A glazed internal door leads to an inner hallway with access to the home study, which overlooks the front elevation via a UPVC double glazed window. Concluding the ground floor, a rear porch provides access to a larger-than-average integral garage and staircase rising to an optional self-contained annex, detailed separately.

The first floor landing includes a walk-in cupboard housing integrated media systems, fuse board, and internet wiring, with stairs continuing to the second floor. The master bedroom is a spacious dual-aspect room with its own dressing area, featuring fitted wardrobes with sliding doors, and a private ensuite shower room complete with WC, hand wash basin, heated towel rail, and a 7-jet double shower enclosure. Across the landing is a second double bedroom with a side aspect windows, and a third double bedroom enjoying both front and side-facing windows. The luxury-appointed family bathroom is a true centrepiece, offering a five-piece suite comprising WC, bidet, hand wash basin, a 7-jet double shower enclosure, and a spa Jacuzzi bath with mixer tap, all complemented by a wall-mounted television set into decorative tiled surrounds and a heated towel rail beneath alongside a rear-facing window.

The second floor offers a highly versatile layout, ideal as a teenager’s suite or additional bedrooms. The first section, described as a snug, provides a cosy sitting area with skylight windows, eaves storage, and a small recess with a stainless steel sink and storage cupboards. The bedroom space on this level includes its own WC, hand wash basin, and twin skylight windows to both front and rear aspects, making it ideal for guests or independent living.

Above the garage and accessed either separately or within the main home, the self-contained optional annex, provides open-plan living accommodation with a lounge diner and kitchenette featuring oven, hob, and sink. There is a double bedroom overlooking the rear garden and a fitted bathroom comprising WC, hand wash basin, and panelled bath.

Completing the accommodation is a substantial integral garage combined workshop space, with a UPVC window and door to the front aspect (requires removal for vehicle access) and an internal door linking to the rear porch.

Outside the established grounds have a large gravel driveway area set behind double electric gates with rear stone patio and lawn garden, with an attractive backdrop of mature trees and shrubs.

Front Porch
2.01m x 1.27m (6'7 x 4'2)

Reception Hallway

Guest Cloakroom

Lounge
5.64m x 3.91m (18'6 x 12'10)

Dining Room
4.24m x 3.68m (13'11 x 12'1)

Kitchen Diner
5.59m max x 4.34m max (18'4 max x 14'3 max)

Utility Room
3.20m x 2.18m (10'6 x 7'2)

Home Office
3.10m x 2.87m (10'2 x 9'5)

Rear Porch
3.23m x 2.49m (10'7 x 8'2)

First Floor

Master Bedroom Suite
5.66m x 3.91m + dressing area (18'7 x 12'10 + dres

Ensuite Shower Room
2.18m x 1.88m (7'2 x 6'2)

Bedroom Two
5.16m x 2.97m (16'11 x 9'9)

Bedroom Three
3.73m x 3.53m (12'3 x 11'7)

Bathroom
3.43m max x 2.54m max (11'3 max x 8'4 max)

Second Floor

Sung / Bedroom Four
5.00m x 3.43m into limited headroom (16'5 x 11'3 i

Bedroom Five
3.58m x 3.43m into limited headroom (11'9 x 11'3 i

Separate WC

Tandem Garage
6.71m x 4.17m (22'0 x 13'8)


Property construction: Standard
Parking: Drive & Garage (currently Gym)
Electricity supply: Mains
Water supply: Mains
Sewerage: Mains
Heating: Calor Gas Boiler
Council Tax Band: F
Local Authority: South Derbyshire Council
Broadband type: TBC - See Ofcom link for speed: https://checker.ofcom.org.uk/ Mobile signal/coverage: See Ofcom link https://checker.ofcom.org.uk/
Useful Websites: www.gov.uk/government/organisations/environment-agency
The property information provided by Nicholas Humphrey Estate Agents is based on enquiries made of the vendor and from information available in the public domain. If there is any point on which you require further clarification, please contact the office and we will be pleased to check the information for you. Please note if your enquiry is of a legal or structural nature, we advise you to seek advice from a qualified professional in their relevant field.
Draft details awaiting vendor approval and subject to change.
Awaiting revised EPC inspection

Additional Information
Council Tax Band:
F
Rooms
The Accommodation
Robinson House, situated on Colliery Lane in Linton, is an individually designed detached family residence occupying a generous and well-established plot, accessed via double-opening electric gates. Centrally positioned within its grounds, the property immediately presents a sense of exclusivity and grandeur. The internal accommodation opens with a UPVC front entrance door into an enclosed porch, offering useful storage space, UPVC double glazed windows, and a glazed internal door through to a welcoming reception hallway. The hallway features a staircase rising to the upper floors, a built-in understairs storage cupboard, and a front-facing UPVC double glazed window. Off the hallway is a guest cloakroom fitted with WC, hand wash basin, and extractor fan.

A notable highlight of the ground floor is the impressive open-plan dining kitchen, which showcases a broad selection of fitted base cupboards, drawers, and eye-level wall units with striking black granite worktops. A cent...
Front Porch
Reception Hallway
Guest Cloakroom
Lounge
Dining Room
Kitchen Diner
Utility Room
Home Office
Rear Porch
First Floor
Master Bedroom Suite
Ensuite Shower Room
Bedroom Two
Bedroom Three
Bathroom
Second Floor
Sung / Bedroom Four
Bedroom Five
Separate WC
Tandem Garage

Mortgage calculator

Calculate Your Stamp Duty
£
Results
Stamp Duty To Pay:
Effective Rate:
Tax Band % Taxable Sum Tax

Colliery Lane, Linton, Swadlincote

Struggling to find a property? Get in touch and we'll help you find your ideal property.

Interested in viewing this property?
Book a Viewing
Main menu