Nicholas Humphreys

5 bedroom Semi-detached house For Sale

Northdene Road, Leicester

£475,000 | Available

5 Bedrooms
4 Bathrooms
3 Receptions

Leicester (Barkers, Queens Rd)

79 Queens Road, 
Leicester, 
LE2 1TT
Standout Features

Property Description

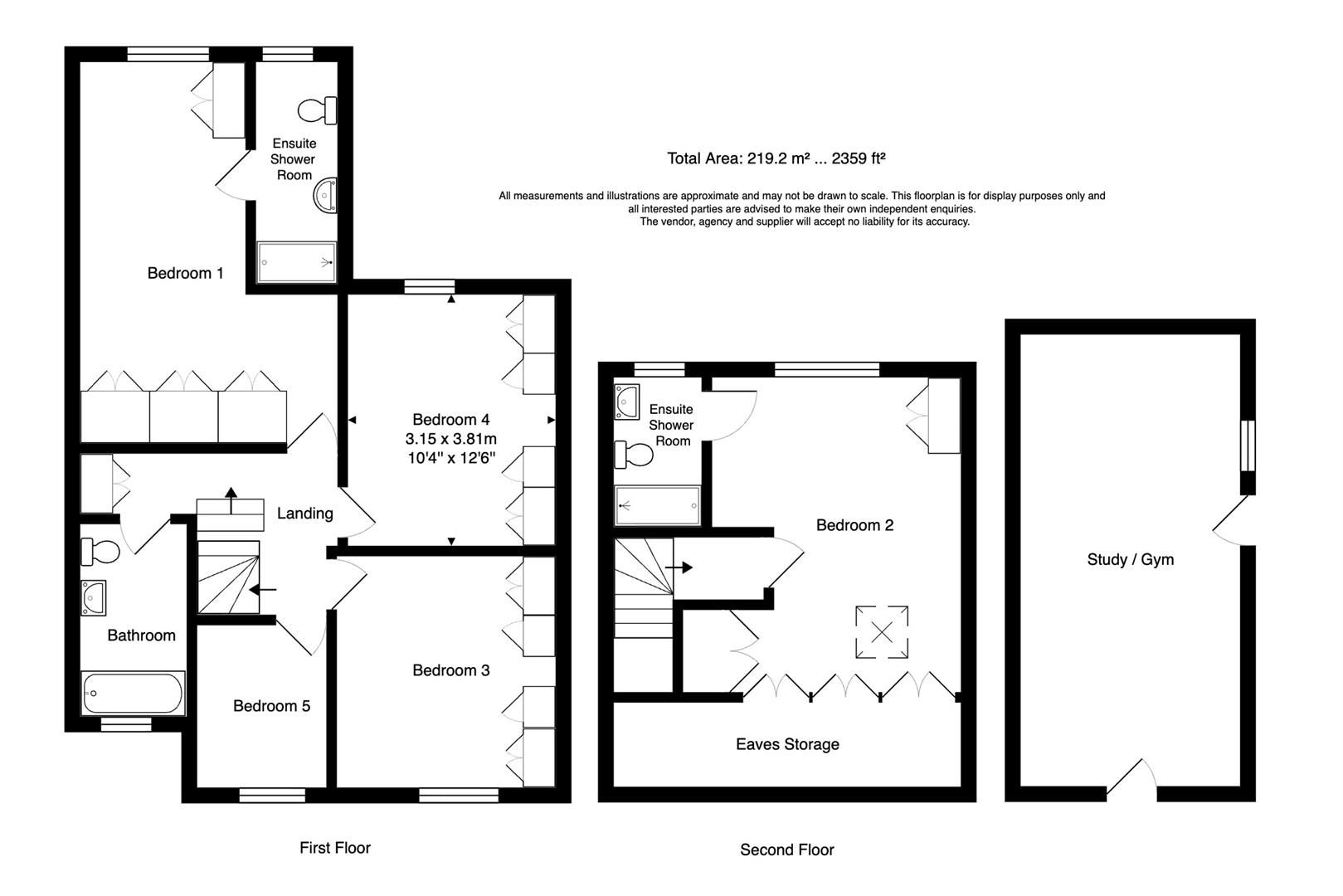
An extremely spacious and extended well presented, FIVE BEDROOM semi detached family home located in WEST KNIGHTON.

The house offers great space and briefly comprises a porch, entrance hall, lounge, dining room, breakfast kitchen, inner hallway, downstairs shower room on the ground floor.

To the first floor there are four bedrooms and a bathroom, the main bedroom benefiting from an en-suite shower room.

The third floor has a large bedroom with a further en-suite shower room.

To the rear is a good sized garden with patio area and a DETACHED HOME OFFICE / GYM.

Conveniently located to local schools, amenities, and transport links to Leicester City Centre, Fosse Park and the M1/M69 junctions. With locals schools within close proximity.

The house is being sold with NO CHAIN.

PORCH
Double glazed front door with frosted double glazed windows to front aspect, tiled floor, spot lights, double glazed door leading into,

ENTRANCE HALL
Stairs rising to first floor, meter cupboard, alarm pad, radiator, spotlights, underfloor heating.

LIVING ROOM
8.40 x 3.53 (27'6" x 11'6") - Built in wall unit, two radiators, spotlights, underfloor heating, double glazed bay window to front aspect, double glazed sliding doors to rear leading into,

DINING ROOM
3.93 x 2.96 (12'10" x 9'8") - Velux window to ceiling, spot lights, radiator, underfloor heating, double glazed sliding doors to rear leading into kitchen.

BREAKFAST - KITCHEN
4.34 reducing to 1.59 x 5.31 reducing to 2.16 (14' - L Shaped, fitted units with work tops double sink with drainer, gas range cooker and extractor, space for fridge freezer, radiator, tiled walls and floor, built in breakfast bar, spot lights, two Velux windows to ceiling, two double glazed windows to rear and double glazed door to rear leading into garden.

INNER HALLWAY
3.93 x 1.40 max (12'10" x 4'7" max) - Built in cupboard, radiator, tiled floor. door leading into kitchen and dining room

DOWNSTAIRS SHOWER ROOM
2.30 x 1.18 (7'6" x 3'10") - Shower cubicle with mains shower, vanity unit, low level W/C, heated towel rail, tiled floor and walls, underfloor heating, double glazed window to side aspect.

OTHER ASPECT

LOBBY
Sliding wooden door, radiator, built in cupboard housing 'Worcester' boiler an tank, double glazed door and window to front aspect, double glazed door to rear aspect.

FIRST FLOOR LANDING
Built in cupboard.

BEDROOM ONE
5.77 x 3.91 (18'11" x 12'9") - Fitted wardrobes, three radiators, spot lights, double glazed window to rear aspect.

OTHER ASPECT

EN-SUITE SHOWER ROOM
3.24 x 1.16 (10'7" x 3'9") - Shower cubicle with mains shower, vanity unit, heated towel rail, low level W/C, tiled walls and floor.

BEDROOM TWO
3.50 x 3.33 (11'5" x 10'11") - Fitted wardrobes, radiator, spot lights, double glazed window to front aspect.

BEDROOM THREE
3.80 x 3.14 (12'5" x 10'3") - Fitted wardrobes, radiator, spot lights, double glazed window to rear aspect.

BEDROOM FOUR
2.46 x 1.96 (8'0" x 6'5") - Radiator, double glazed window to front aspect.

BATHROOM
2.79 x 1.51 (9'1" x 4'11") - Bath with mains shower, low level W.C, vanity unit, heated towel rail, tiled floor and walls, double glazed frosted window to front aspect.

SECOND FLOOR

BEDROOM FIVE
4.78 x 4.02 (15'8" x 13'2") - Two built in wardrobes, radiator, Eaves storage, Velux window to front aspect, double glazed window to rear aspect.

ENSUITE SHOWER ROOM
2.28 x 1.25 (7'5" x 4'1") - Shower cubicle with electric shower, vanity unit, low level W/C, heated towel rail, tiled walls and floor, double glazed frosted window to rear aspect.

OUTSIDE
Water tap, paved area, laid with artificial grass, flower border with mature trees.

HOME OFFICE/ GYM
6.69 x 3.16 (21'11" x 10'4") - Double glazed door to front and side aspects, double glazed window to side elevation.

FREE VALUATION
Thinking of selling? We would be delighted to provide you with a free market appraisal/valuation of your own property. Please contact Barkers to arrange a mutually convenient appointment on Tel: 0116 270 9394

GENERAL REMARKS
We are unable to confirm whether certain items in the property are in fully working order (i.e. gas, electric, plumbing etc.) The property is offered for sale on this basis. Prospective purchasers are advised to inspect the property and commission expert reports where appropriate. Barkers Estate Agents have a policy of seeking to obtain any copy guarantees / invoices relating to works that may have been carried out by a previous or existing owner. Please ask one of our staff members to check files for any relevant documentation that have come to our attention.
Photographs are reproduced for general information and it must not be inferred that any items shown are included in the sale with the property.
MONEY LAUNDERING
Under the Protection Against Money Laundering and the Proceeds of Crime Act 2002, we must point out that any successful purchasers who are proceeding with a purchase will be asked for identification i.e. passport or driving licence or recent utility bill. This evidence will be required prior to solicitors being instructed in the purchase of the sale of a property.
MORTGAGES
Barkers Estate Agents offer the services of an independent mortgage and financial adviser. Please ask an advisor for further information.
VIEWING TIMES
Viewing strictly by appointment through Barkers Estate Agents.
Hours of Business:
Monday to Friday 9am -5pm
Saturday 9am - 4pm

AML DISCLAIMER
In accordance with current Anti-Money Laundering and Proceeds of Crime Legislation, all buyers are required to complete identity and verification checks.
These checks are carried out on our behalf of Moverly, our approved AML provider.
A £50 fee (incl. vat) covers required data and any manual checks.
This must be paid before we can issue a memorandum of sale.
The fee is non-refundable and paid directly to Moverly. We receive a portion of this fee for facilitating the checks

Additional Information
Tenure:
Freehold
Council Tax Band:
C
Rooms
PORCH

Double glazed front door with frosted double glazed windows to front aspect, tiled floor, spot lights, double glazed door leading into,

ENTRANCE HALL

Stairs rising to first floor, meter cupboard, alarm pad, radiator, spotlights, underfloor heating.

LIVING ROOM

Built in wall unit, two radiators, spotlights, underfloor heating, double glazed bay window to front aspect, double glazed sliding doors to rear leading into,

DINING ROOM

Velux window to ceiling, spot lights, radiator, underfloor heating, double glazed sliding doors to rear leading into kitchen.

BREAKFAST - KITCHEN

L Shaped, fitted units with work tops double sink with drainer, gas range cooker and extractor, space for fridge freezer, radiator, tiled walls and floor, built in breakfast bar, spot lights, two Velux windows to ceiling, two double glazed windows to rear and double glazed door to rear leading into garden.

INNER HALLWAY

Built in cupboard, radiator, tiled floor. door leading into kitchen and dining room

DOWNSTAIRS SHOWER ROOM

Shower cubicle with mains shower, vanity unit, low level W/C, heated towel rail, tiled floor and walls, underfloor heating, double glazed window to side aspect.

OTHER ASPECT
LOBBY

Sliding wooden door, radiator, built in cupboard housing 'Worcester' boiler an tank, double glazed door and window to front aspect, double glazed door to rear aspect.

FIRST FLOOR LANDING

Built in cupboard.

BEDROOM ONE

Fitted wardrobes, three radiators, spot lights, double glazed window to rear aspect.

OTHER ASPECT
EN-SUITE SHOWER ROOM

Shower cubicle with mains shower, vanity unit, heated towel rail, low level W/C, tiled walls and floor.

BEDROOM TWO

Fitted wardrobes, radiator, spot lights, double glazed window to front aspect.

BEDROOM THREE

Fitted wardrobes, radiator, spot lights, double glazed window to rear aspect.

BEDROOM FOUR

Radiator, double glazed window to front aspect.

BATHROOM

Bath with mains shower, low level W.C, vanity unit, heated towel rail, tiled floor and walls, double glazed frosted window to front aspect.

SECOND FLOOR
BEDROOM FIVE

Two built in wardrobes, radiator, Eaves storage, Velux window to front aspect, double glazed window to rear aspect.

ENSUITE SHOWER ROOM

Shower cubicle with electric shower, vanity unit, low level W/C, heated towel rail, tiled walls and floor, double glazed frosted window to rear aspect.

OUTSIDE

Water tap, paved area, laid with artificial grass, flower border with mature trees.

HOME OFFICE/ GYM

Double glazed door to front and side aspects, double glazed window to side elevation.

FREE VALUATION

Thinking of selling? We would be delighted to provide you with a free market appraisal/valuation of your own property. Please contact Barkers to arrange a mutually convenient appointment on Tel: 0116 270 9394

GENERAL REMARKS

We are unable to confirm whether certain items in the property are in fully working order (i.e. gas, electric, plumbing etc.) The property is offered for sale on this basis. Prospective purchasers are advised to inspect the property and commission expert reports where appropriate. Barkers Estate Agents have a policy of seeking to obtain any copy guarantees / invoices relating to works that may have been carried out by a previous or existing owner. Please ask one of our staff members to check files for any relevant documentation that have come to our attention.
Photographs are reproduced for general information and it must not be inferred that any items shown are included in the sale with the property.
MONEY LAUNDERING
Under the Protection Against Money Laundering and the Proceeds of Crime Act 2002, we must point out that any successful purchasers who are proceeding with a purchase will be asked for identification i.e. passport or driving licence or recent utility bill....

AML DISCLAIMER

In accordance with current Anti-Money Laundering and Proceeds of Crime Legislation, all buyers are required to complete identity and verification checks.
These checks are carried out on our behalf of Moverly, our approved AML provider.
A £50 fee (incl. vat) covers required data and any manual checks.
This must be paid before we can issue a memorandum of sale.
The fee is non-refundable and paid directly to Moverly. We receive a portion of this fee for facilitating the checks


Mortgage calculator

Calculate Your Stamp Duty
£
Results
Stamp Duty To Pay:
Effective Rate:
Tax Band % Taxable Sum Tax

Northdene Road, Leicester

Struggling to find a property? Get in touch and we'll help you find your ideal property.

Interested in viewing this property?
Book a Viewing
Main menu