5 bedroom Semi-detached house For Sale

Evington Valley Gardens, Leicester

Guide Price £450,000 | Available

5 Bedrooms
3 Bathrooms
2 Receptions

Leicester (Barkers, Queens Rd)

79 Queens Road, 
Leicester, 
LE2 1TT
Standout Features

Property Description
Guide Price £450,000 - £470,000

A well presented FIVE BEDROOM spacious TOWN HOUSE located at the bottom of this sought after CUL DE SAC in EVINGTON.

Spread over three floors the property comprises of hallway, downstairs w/c, reception one, dining kitchen and utility room on the ground floor. On the first floor there is another reception room, two bedrooms and a shower room. The top floor has the principal bedroom with en-suite shower room, two further bedrooms and a bathroom.

To the rear is low maintenance garden mainly laid to lawn with patio area.

There is OFF STREET PARKING to the front of the property.

Evington is a highly sought after suburb within Leicester, providing easy access to City Centre and local schooling and places of worship not to mention the Leicester Royal Infirmary and General Hospitals.

VIEWING IS RECOMMENDED - CALL BARKERS NOW 0116 2709394

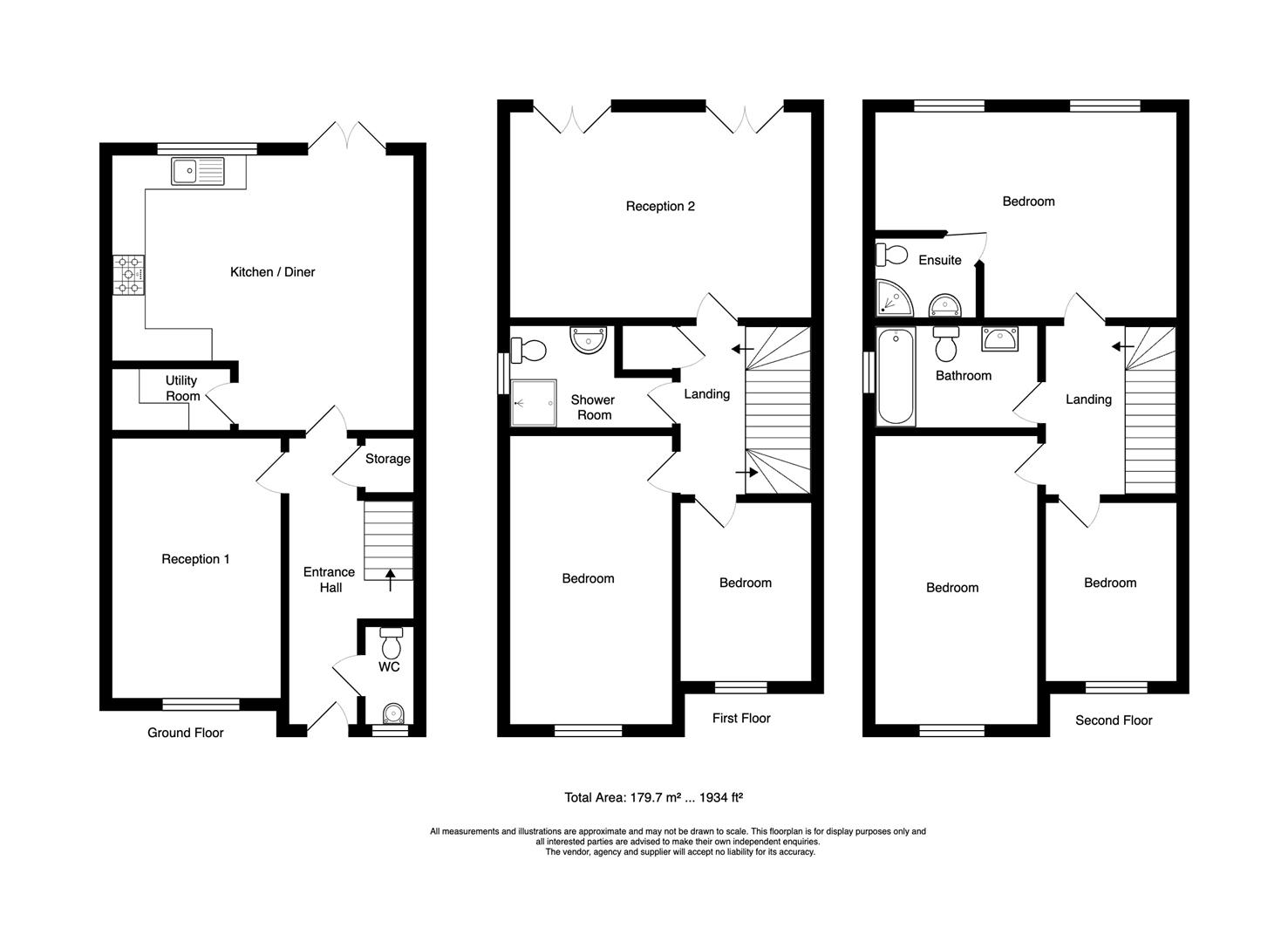
ENTRANCE HALLWAY
Double glazed front door, stairs rising to first floor, under stair cupboard, radiator, spot lights.

DOWNSTAIRS W/C
1.92 x 0.87 (6'3" x 2'10") - Low level W/C, pedestal wash hand basin, radiator, spot light, frosted double glazed window to front aspect.

RECEPTION ONE
4.71 x 2.99 (15'5" x 9'9") - Alarm panel on wall, radiator, double glazed window to front aspect.

DINING KITCHEN
5.57 x 4.83 max (18'3" x 15'10" max) - Fitted units with worktops over and tiled splash backs, gas range, extractor above, sink with drainer, integrated dishwasher, space for fridge freezer, radiator, spotlights, double glazed window to rear aspect and pair of double glazed doors leading to rear garden.

KITCHEN AREA

DINING AREA

UTILITY ROOM
3.19 x 1.40 (10'5" x 4'7") - Fitted unit with worktop, 'Boiler', plumbing for washing machine, tiled floor, part tiled walls, spotlights, radiator,

FIRST FLOOR LANDING
Built in cupboard housing 'Mega flow' spot lights.

RECEPTION TWO
5.58 x 3.77 (18'3" x 12'4") - Dual double glazed doors leading onto Juliet balconies facing the rear aspect, two radiators, spotlights.

BEDROOM TWO
5.24 x 2.97 (17'2" x 9'8") - Radiator, spot lights, double glazed window to front aspect.

BEDROOM FIVE
3.22 x 2.46 (10'6" x 8'0") - Radiator, spotlights, double glazed window to front aspect.

SHOWER ROOM
2.95 max x 1.95 (9'8" max x 6'4") - Shower cubicle with mains shower, pedestal wash hand basin, low level W/C, radiator, spotlights, tiled walls and floor, frosted double glazed window to side aspect.

SECOND FLOOR LANDING
Access to loft.

BEDROOM ONE
5.58 x 3.78 (18'3" x 12'4") - Two radiators, two double glazed windows to rear aspect.

EN-SUITE SHOWER ROOM
1.76 x 1.74 (5'9" x 5'8") - Corner shower cubicle with mains shower, pedestal wash hand basin, low level W/C, radiator, part tiled walls, tiled floor, frosted double glazed window to side aspect.

BEDROOM THREE
5.35 x 2.30 (17'6" x 7'6") - Radiator, double glazed window to front aspect.

BEDROOM FOUR
3.37 x 2.43 (11'0" x 7'11") - Radiator, double glazed window to front aspect.

BATHROOM
3.00 x 1.91 (9'10" x 6'3") - Bath, pedestal wash hand basin, low level W/C, tiled floor, part tiled walls, spot lights, radiator.

OUTSIDE
To the rear is mainly laid to lawn with a paved area, and gate to side aspect leading to front of the property.

To the front of the house is off street parking, grassed area, and covered porch with light.

FREE VALUATION
Thinking of selling? We would be delighted to provide you with a free market appraisal/valuation of your own property. Please contact Barkers to arrange a mutually convenient appointment on Tel: 0116 270 9394

GENERAL REMARKS
We are unable to confirm whether certain items in the property are in fully working order (i.e. gas, electric, plumbing etc.) The property is offered for sale on this basis. Prospective purchasers are advised to inspect the property and commission expert reports where appropriate. Barkers Estate Agents have a policy of seeking to obtain any copy guarantees / invoices relating to works that may have been carried out by a previous or existing owner. Please ask one of our staff members to check files for any relevant documentation that have come to our attention.
Photographs are reproduced for general information and it must not be inferred that any items shown are included in the sale with the property.
MONEY LAUNDERING
Under the Protection Against Money Laundering and the Proceeds of Crime Act 2002, we must point out that any successful purchasers who are proceeding with a purchase will be asked for identification i.e. passport or driving licence or recent utility bill. This evidence will be required prior to solicitors being instructed in the purchase of the sale of a property.
MORTGAGES
Barkers Estate Agents offer the services of an independent mortgage and financial adviser. Please ask an advisor for further information.
VIEWING TIMES
Viewing strictly by appointment through Barkers Estate Agents.
Hours of Business:
Monday to Friday 9am -5pm
Saturday 9am - 4pm

Additional Information
Council Tax Band:
E
Rooms
ENTRANCE HALLWAY
Double glazed front door, stairs rising to first floor, under stair cupboard, radiator, spot lights.
DOWNSTAIRS W/C
Low level W/C, pedestal wash hand basin, radiator, spot light, frosted double glazed window to front aspect.
RECEPTION ONE
Alarm panel on wall, radiator, double glazed window to front aspect.
DINING KITCHEN
Fitted units with worktops over and tiled splash backs, gas range, extractor above, sink with drainer, integrated dishwasher, space for fridge freezer, radiator, spotlights, double glazed window to rear aspect and pair of double glazed doors leading to rear garden.
KITCHEN AREA
DINING AREA
UTILITY ROOM
Fitted unit with worktop, 'Boiler', plumbing for washing machine, tiled floor, part tiled walls, spotlights, radiator,
FIRST FLOOR LANDING
Built in cupboard housing 'Mega flow' spot lights.
RECEPTION TWO
Dual double glazed doors leading onto Juliet balconies facing the rear aspect, two radiators, spotlights.
BEDROOM TWO
Radiator, spot lights, double glazed window to front aspect.
BEDROOM FIVE
Radiator, spotlights, double glazed window to front aspect.
SHOWER ROOM
Shower cubicle with mains shower, pedestal wash hand basin, low level W/C, radiator, spotlights, tiled walls and floor, frosted double glazed window to side aspect.
SECOND FLOOR LANDING
Access to loft.
BEDROOM ONE
Two radiators, two double glazed windows to rear aspect.
EN-SUITE SHOWER ROOM
Corner shower cubicle with mains shower, pedestal wash hand basin, low level W/C, radiator, part tiled walls, tiled floor, frosted double glazed window to side aspect.
BEDROOM THREE
Radiator, double glazed window to front aspect.
BEDROOM FOUR
Radiator, double glazed window to front aspect.
BATHROOM
Bath, pedestal wash hand basin, low level W/C, tiled floor, part tiled walls, spot lights, radiator.
OUTSIDE
To the rear is mainly laid to lawn with a paved area, and gate to side aspect leading to front of the property.

To the front of the house is off street parking, grassed area, and covered porch with light.
FREE VALUATION
Thinking of selling? We would be delighted to provide you with a free market appraisal/valuation of your own property. Please contact Barkers to arrange a mutually convenient appointment on Tel: 0116 270 9394
GENERAL REMARKS
We are unable to confirm whether certain items in the property are in fully working order (i.e. gas, electric, plumbing etc.) The property is offered for sale on this basis. Prospective purchasers are advised to inspect the property and commission expert reports where appropriate. Barkers Estate Agents have a policy of seeking to obtain any copy guarantees / invoices relating to works that may have been carried out by a previous or existing owner. Please ask one of our staff members to check files for any relevant documentation that have come to our attention.
Photographs are reproduced for general information and it must not be inferred that any items shown are included in the sale with the property.
MONEY LAUNDERING
Under the Protection Against Money Laundering and the Proceeds of Crime Act 2002, we must point out that any successful purchasers who are proceeding with a purchase will be asked for identification i.e. passport or driving licence or recent utility bill....

Mortgage calculator

Calculate Your Stamp Duty
£
Results
Stamp Duty To Pay:
Effective Rate:
Tax Band % Taxable Sum Tax

Evington Valley Gardens, Leicester

Struggling to find a property? Get in touch and we'll help you find your ideal property.

Interested in viewing this property?
Book a Viewing
Main menu