4 bedroom Semi-detached house For Sale

Kingsway Road, Leicester

£450,000 | Available

4 Bedrooms
1 Bathrooms
2 Receptions

Leicester (Barkers, Queens Rd)

79 Queens Road, 
Leicester, 
LE2 1TT
Standout Features

Property Description

A beautifully presented, EXTENDED FOUR BEDROOM semi detached house in EVINGTON.

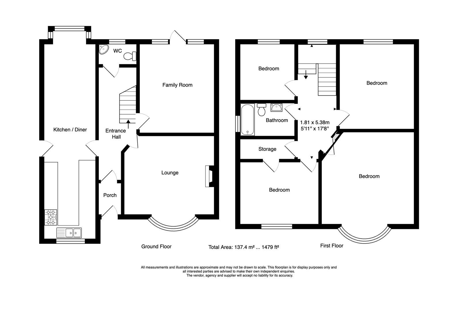
The home briefly comprises a porch, entrance hall, lounge, family room, dining kitchen and downstairs W/C.

On the first floor there are four bedrooms and a bathroom.

There is a GOOD SIZE rear garden with OWN DRIVE to the front of the property.

Well situated in the sought after city suburb of Evington, being well served for the City Centre, city hospitals, local places of worship and an array of amenities can be found along the popular Evington Road.

PORCH
Double glazed front door.

ENTRANCE HALLWAY
5.16 x 1.81 max (16'11" x 5'11" max) - Radiator, staircase rising to first floor.

LOUNGE
4.51 into bay x 4.27 (14'9" into bay x 14'0") - Mantle place, radiator, double glazed bay window to front aspect.

FAMILY ROOM
3.95 x 3.50 (12'11" x 11'5") - Two radiators, double glazed door and windows to rear aspect.

DINING KITCHEN
8.98 x 2.41 (29'5" x 7'10") - Fitted units with worktops and matching splash backs, integrated 'Whirlpool' induction hob and two ring gas hob, sink with drainer, integrated double oven, space for fridge freezer, spot lights, plumbing for washing machine, double glazed window to front aspect.

KITCHEN AREA

DINING AREA
'Worcester' boiler, radiator, spot lights, double glazed door to side aspect and double glazed bay window to rear aspect.

DOWNSTAIRS W/C
Vanity unit, low level W/C, radiator, tiled floor, part tiled walls, double glazed window to rear aspect.

LANDING
Access to loft, radiator, double glazed window to rear aspect.

BEDROOM ONE
4.54 to bay x 4.26 (14'10" to bay x 13'11") - Radiator, double glazed window to front aspect.

BEDROOM TWO
3.95 x 3.49 (12'11" x 11'5") - Radiator, double glazed window to rear aspect.

BEDROOM THREE
3.67 x 2.91 (12'0" x 9'6") - Built in cupboard, radiator, double glazed window to front aspect.

BEDROOM FOUR
2.74 x 2.47 (8'11" x 8'1") - Radiator, double glazed window to rear aspect.

BATHROOM
2.38 x 1.51 (7'9" x 4'11") - Low level W/C, bath with mains shower, vanity unit, heated towel rail, under floor heating, tiled walls and floor.

OUTSIDE
Paved area with steps up to lawned good sized lawned garden, shed, gate to front aspect.

To the front of the property is a driveway.

FREE VALUATION
Thinking of selling? We would be delighted to provide you with a free market appraisal/valuation of your own property. Please contact Barkers to arrange a mutually convenient appointment on Tel: 0116 270 9394

GENERAL REMARKS
We are unable to confirm whether certain items in the property are in fully working order (i.e. gas, electric, plumbing etc.) The property is offered for sale on this basis. Prospective purchasers are advised to inspect the property and commission expert reports where appropriate. Barkers Estate Agents have a policy of seeking to obtain any copy guarantees / invoices relating to works that may have been carried out by a previous or existing owner. Please ask one of our staff members to check files for any relevant documentation that have come to our attention.
Photographs are reproduced for general information and it must not be inferred that any items shown are included in the sale with the property.
MONEY LAUNDERING
Under the Protection Against Money Laundering and the Proceeds of Crime Act 2002, we must point out that any successful purchasers who are proceeding with a purchase will be asked for identification i.e. passport or driving licence or recent utility bill. This evidence will be required prior to solicitors being instructed in the purchase of the sale of a property.
MORTGAGES
Barkers Estate Agents offer the services of an independent mortgage and financial adviser. Please ask an advisor for further information.
VIEWING TIMES
Viewing strictly by appointment through Barkers Estate Agents.
Hours of Business:
Monday to Friday 9am -5pm
Saturday 9am - 4pm

Additional Information
Tenure:
Freehold
Council Tax Band:
D

Mortgage calculator

Calculate Your Stamp Duty
£
Results
Stamp Duty To Pay:
Effective Rate:
Tax Band % Taxable Sum Tax

Kingsway Road, Leicester

Struggling to find a property? Get in touch and we'll help you find your ideal property.

Interested in viewing this property?
Book a Viewing
Main menu