3 bedroom Terraced House For Sale

Wilberforce Road, Leicester

£200,000 | Available

3 Bedrooms
1 Bathrooms
2 Receptions

Leicester (Barkers, Queens Rd)

79 Queens Road, 
Leicester, 
LE2 1TT
Standout Features

Property Description
INVESTMENT OPPORTUNITY or FAMILY HOME.

Three bedroom, property in the WEST END, offered for sale with NO CHAIN.

The property comprises two reception rooms (one has been previously used as a bedroom, creating a 4 share), kitchen and shower room.
Upstairs there are three bedrooms and a rear yard.

The property is well located and within walking distance of De Montfort University, Leicester Royal Infirmary and Leicester city centre.

VIEWING IS RECOMMENDED - CALL BARKERS NOW ON 0116 2709394

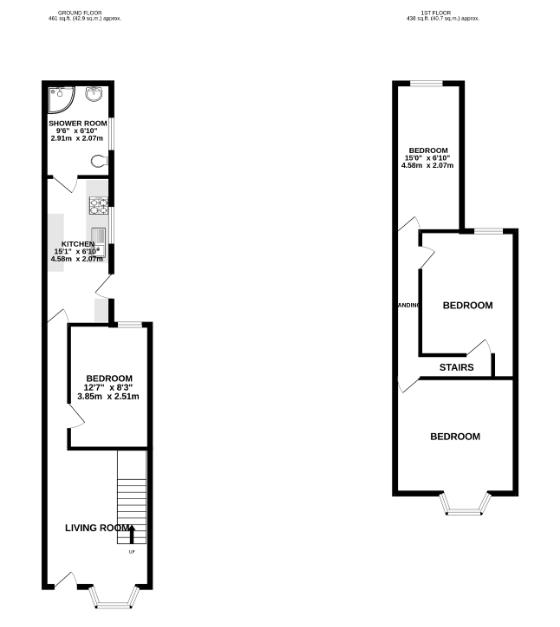
RECEPTION ONE
4.89 x 3.41 (16'0" x 11'2") - Double glazed front door, two radiators, open plan staircase , double glazed bay window to front aspect.

OTHER ASPECT

RECEPTION TWO/ BEDROOM FOUR
3.77 x 2.41 (12'4" x 7'10") - Built in under stairs cupboard, radiator, double glazed window to rear aspect.

KITCHEN
5.63 x 1.80 (18'5" x 5'10") - Fitted units with worktops and tiled splash backs, four ring gas hob with oven and extractor, sink with drainer, built in cupboard housing 'Worcester' boiler, plumbing for W/M, tiled floor, double glazed window and door to side aspect.

DOWNSTAIRS SHOWER ROOM
2.71 x 1.82 (8'10" x 5'11") - Corner shower cubicle with mains shower, pedestal wash hand basin. low level w/c, radiator, tiled floor and walls, frosted double glazed window to side aspect.

LANDING
Access to loft

BEDROOM ONE
3.93 x 3.43 (12'10" x 11'3") - Built in cupboard, radiator, double glazed bay window to front aspect.

BEDROOM TWO
3.78 x 2.45 (12'4" x 8'0") - Built in cupboard, radiator, double glazed window to rear elevation.

BEDROOM THREE
3.35 x 1.97 (10'11" x 6'5") - Radiator, double glazed window to rear aspect.

OUTSIDE
small paved area, wooden gate to rear.

To the front of property there is a low brick wall.

FREE VALUATION
Thinking of selling? We would be delighted to provide you with a free market appraisal/valuation of your own property. Please contact Barkers to arrange a mutually convenient appointment on Tel: 0116 270 9394

GENERAL REMARKS
We are unable to confirm whether certain items in the property are in fully working order (i.e. gas, electric, plumbing etc.) The property is offered for sale on this basis. Prospective purchasers are advised to inspect the property and commission expert reports where appropriate. Barkers Estate Agents have a policy of seeking to obtain any copy guarantees / invoices relating to works that may have been carried out by a previous or existing owner. Please ask one of our staff members to check files for any relevant documentation that have come to our attention.
Photographs are reproduced for general information and it must not be inferred that any items shown are included in the sale with the property.
MONEY LAUNDERING
Under the Protection Against Money Laundering and the Proceeds of Crime Act 2002, we must point out that any successful purchasers who are proceeding with a purchase will be asked for identification i.e. passport or driving licence or recent utility bill. This evidence will be required prior to solicitors being instructed in the purchase of the sale of a property.
MORTGAGES
Barkers Estate Agents offer the services of an independent mortgage and financial adviser. Please ask an advisor for further information.
VIEWING TIMES
Viewing strictly by appointment through Barkers Estate Agents.
Hours of Business:
Monday to Friday 9am -5pm
Saturday 9am - 4pm

DISCLAIMER
The photographs were taken prior to tenants moving in.

Additional Information
Council Tax Band:
A
Rooms
RECEPTION ONE
Double glazed front door, two radiators, open plan staircase , double glazed bay window to front aspect.
OTHER ASPECT
RECEPTION TWO/ BEDROOM FOUR
Built in under stairs cupboard, radiator, double glazed window to rear aspect.
KITCHEN
Fitted units with worktops and tiled splash backs, four ring gas hob with oven and extractor, sink with drainer, built in cupboard housing 'Worcester' boiler, plumbing for W/M, tiled floor, double glazed window and door to side aspect.
DOWNSTAIRS SHOWER ROOM
Corner shower cubicle with mains shower, pedestal wash hand basin. low level w/c, radiator, tiled floor and walls, frosted double glazed window to side aspect.
LANDING
Access to loft
BEDROOM ONE
Built in cupboard, radiator, double glazed bay window to front aspect.
BEDROOM TWO
Built in cupboard, radiator, double glazed window to rear elevation.
BEDROOM THREE
Radiator, double glazed window to rear aspect.
OUTSIDE
small paved area, wooden gate to rear.

To the front of property there is a low brick wall.
FREE VALUATION
Thinking of selling? We would be delighted to provide you with a free market appraisal/valuation of your own property. Please contact Barkers to arrange a mutually convenient appointment on Tel: 0116 270 9394
GENERAL REMARKS
We are unable to confirm whether certain items in the property are in fully working order (i.e. gas, electric, plumbing etc.) The property is offered for sale on this basis. Prospective purchasers are advised to inspect the property and commission expert reports where appropriate. Barkers Estate Agents have a policy of seeking to obtain any copy guarantees / invoices relating to works that may have been carried out by a previous or existing owner. Please ask one of our staff members to check files for any relevant documentation that have come to our attention.
Photographs are reproduced for general information and it must not be inferred that any items shown are included in the sale with the property.
MONEY LAUNDERING
Under the Protection Against Money Laundering and the Proceeds of Crime Act 2002, we must point out that any successful purchasers who are proceeding with a purchase will be asked for identification i.e. passport or driving licence or recent utility bill....
DISCLAIMER
The photographs were taken prior to tenants moving in.

Mortgage calculator

Calculate Your Stamp Duty
£
Results
Stamp Duty To Pay:
Effective Rate:
Tax Band % Taxable Sum Tax

Wilberforce Road, Leicester

Struggling to find a property? Get in touch and we'll help you find your ideal property.

Interested in viewing this property?
Book a Viewing
Main menu