3 bedroom Terraced House For Sale

Percy Road, Aylestone, Leicester

Guide Price £210,000 | Available

3 Bedrooms
1 Bathrooms
1 Receptions

Leicester (Barkers, Queens Rd)

79 Queens Road, 
Leicester, 
LE2 1TT
Standout Features

Property Description
Guide Price £210,000-£220,000

An attractive THREE BED MID TERRACED PROPERTY in Aylestone.

The accommodation provides a comfortable starter or family home that benefits from open plan living and briefly comprises, entrance hallway, lounge / diner with patio doors to garden, fitted kitchen, three bedrooms, shower room and well presented front and rear garden.

Superbly situated within the popular city suburb of Aylestone whilst being well served for Leicester County Cricket ground, Leicester University, the City Centre and an array of everyday amenities & leisure facilities can be found locally.


VIEWING IS RECOMMENDED - CALL BARKERS NOW ON 0116 2709394

PORCH
Double glazed window and door to front elevation:

ENTRANCE HALL
Radiator, under stairs cupboard housing meters and additional cupboard with power, door and window to front elevation and stairs to first floor:

OPEN PLAN LOUNGE / DINER
7.41 to bay x 3.38 (24'3" to bay x 11'1") - Feature wall mounted living flame gas, coving, radiators, double glazed bay window to front aspect and double glazed patio doors opening into the rear garden.

FITTED KITCHEN
2.81 x 1.82 (9'2" x 5'11") - Comprising a matching range of wall and base units with marble effect worktops, tiled surround, sink / drainer, free standing gas cooker, space provided for under counter fridge freezer and plumbing for washing machine, radiator, double glazed window and door to rear aspect.

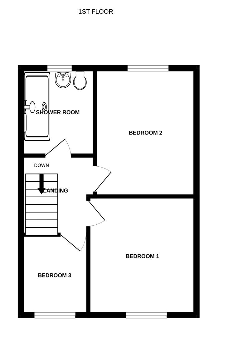
LANDING
Access to loft.

BEDROOM ONE
3.34 x 3.06 (10'11" x 10'0") - Picture rail, radiator and double glazed window to front elevation:

BEDROOM TWO
3.64 x 2.79 (11'11" x 9'1") - Fitted wardobes with over head storage cupboards, concealed 'Ideal' boiler, radiator and double glazed window to rear elevation:

BEDROOM THREE
2.19 x 1.88 (7'2" x 6'2") - Radiator and double glazed window to front elevation:

SHOWER ROOM
2.09 x 1.82 (6'10" x 5'11") - Comprising walk-in shower cubicle, w/c, pedestal wash basin, airing cupboard, radiator and double glazed frosted window to rear elevation:

OUTSIDE
The property benefits from a south facing garden, comprising a raised paved patio which leads to a deepset garden, mainly laid to lawn edged with side borders, having fenced boundaries, two outbuildings, one wooden shed and handy side gated entryway. To the front elevation is a low maintenance hard landscaped neat front forecourt:

FREE VALUATION
Thinking of selling? We would be delighted to provide you with a free market appraisal/valuation of your own property. Please contact Barkers to arrange a mutually convenient appointment on Tel: 0116 270 9394

GENERAL REMARKS
We are unable to confirm whether certain items in the property are in fully working order (i.e. gas, electric, plumbing etc.) The property is offered for sale on this basis. Prospective purchasers are advised to inspect the property and commission expert reports where appropriate. Barkers Estate Agents have a policy of seeking to obtain any copy guarantees / invoices relating to works that may have been carried out by a previous or existing owner. Please ask one of our staff members to check files for any relevant documentation that have come to our attention.
Photographs are reproduced for general information and it must not be inferred that any items shown are included in the sale with the property.
MONEY LAUNDERING
Under the Protection Against Money Laundering and the Proceeds of Crime Act 2002, we must point out that any successful purchasers who are proceeding with a purchase will be asked for identification i.e. passport or driving licence or recent utility bill. This evidence will be required prior to solicitors being instructed in the purchase of the sale of a property.
MORTGAGES
Barkers Estate Agents offer the services of an independent mortgage and financial adviser. Please ask an advisor for further information.
VIEWING TIMES
Viewing strictly by appointment through Barkers Estate Agents.
Hours of Business:
Monday to Friday 9am -5.30pm
Saturday 9am - 4pm

Additional Information
Council Tax Band:
A
Rooms
PORCH
Double glazed window and door to front elevation:
ENTRANCE HALL
Radiator, under stairs cupboard housing meters and additional cupboard with power, door and window to front elevation and stairs to first floor:
OPEN PLAN LOUNGE / DINER
Feature wall mounted living flame gas, coving, radiators, double glazed bay window to front aspect and double glazed patio doors opening into the rear garden.
FITTED KITCHEN
Comprising a matching range of wall and base units with marble effect worktops, tiled surround, sink / drainer, free standing gas cooker, space provided for under counter fridge freezer and plumbing for washing machine, radiator, double glazed window and door to rear aspect.
LANDING
Access to loft.
BEDROOM ONE
Picture rail, radiator and double glazed window to front elevation:
BEDROOM TWO
Fitted wardobes with over head storage cupboards, concealed 'Ideal' boiler, radiator and double glazed window to rear elevation:
BEDROOM THREE
Radiator and double glazed window to front elevation:
SHOWER ROOM
Comprising walk-in shower cubicle, w/c, pedestal wash basin, airing cupboard, radiator and double glazed frosted window to rear elevation:
OUTSIDE
The property benefits from a south facing garden, comprising a raised paved patio which leads to a deepset garden, mainly laid to lawn edged with side borders, having fenced boundaries, two outbuildings, one wooden shed and handy side gated entryway. To the front elevation is a low maintenance hard landscaped neat front forecourt:
FREE VALUATION
Thinking of selling? We would be delighted to provide you with a free market appraisal/valuation of your own property. Please contact Barkers to arrange a mutually convenient appointment on Tel: 0116 270 9394
GENERAL REMARKS
We are unable to confirm whether certain items in the property are in fully working order (i.e. gas, electric, plumbing etc.) The property is offered for sale on this basis. Prospective purchasers are advised to inspect the property and commission expert reports where appropriate. Barkers Estate Agents have a policy of seeking to obtain any copy guarantees / invoices relating to works that may have been carried out by a previous or existing owner. Please ask one of our staff members to check files for any relevant documentation that have come to our attention.
Photographs are reproduced for general information and it must not be inferred that any items shown are included in the sale with the property.
MONEY LAUNDERING
Under the Protection Against Money Laundering and the Proceeds of Crime Act 2002, we must point out that any successful purchasers who are proceeding with a purchase will be asked for identification i.e. passport or driving licence or recent utility bill....

Mortgage calculator

Calculate Your Stamp Duty
£
Results
Stamp Duty To Pay:
Effective Rate:
Tax Band % Taxable Sum Tax

Percy Road, Aylestone, Leicester

Struggling to find a property? Get in touch and we'll help you find your ideal property.

Interested in viewing this property?
Book a Viewing
Main menu