Nicholas Humphreys

3 bedroom Semi-detached house Sold STC

Ashclose Avenue, Leicester

Guide Price £300,000 | SSTC

3 Bedrooms
1 Bathrooms
2 Receptions

Leicester (Barkers, Queens Rd)

79 Queens Road, 
Leicester, 
LE2 1TT
Standout Features

Property Description

Guide Price £300,000 - £325,000

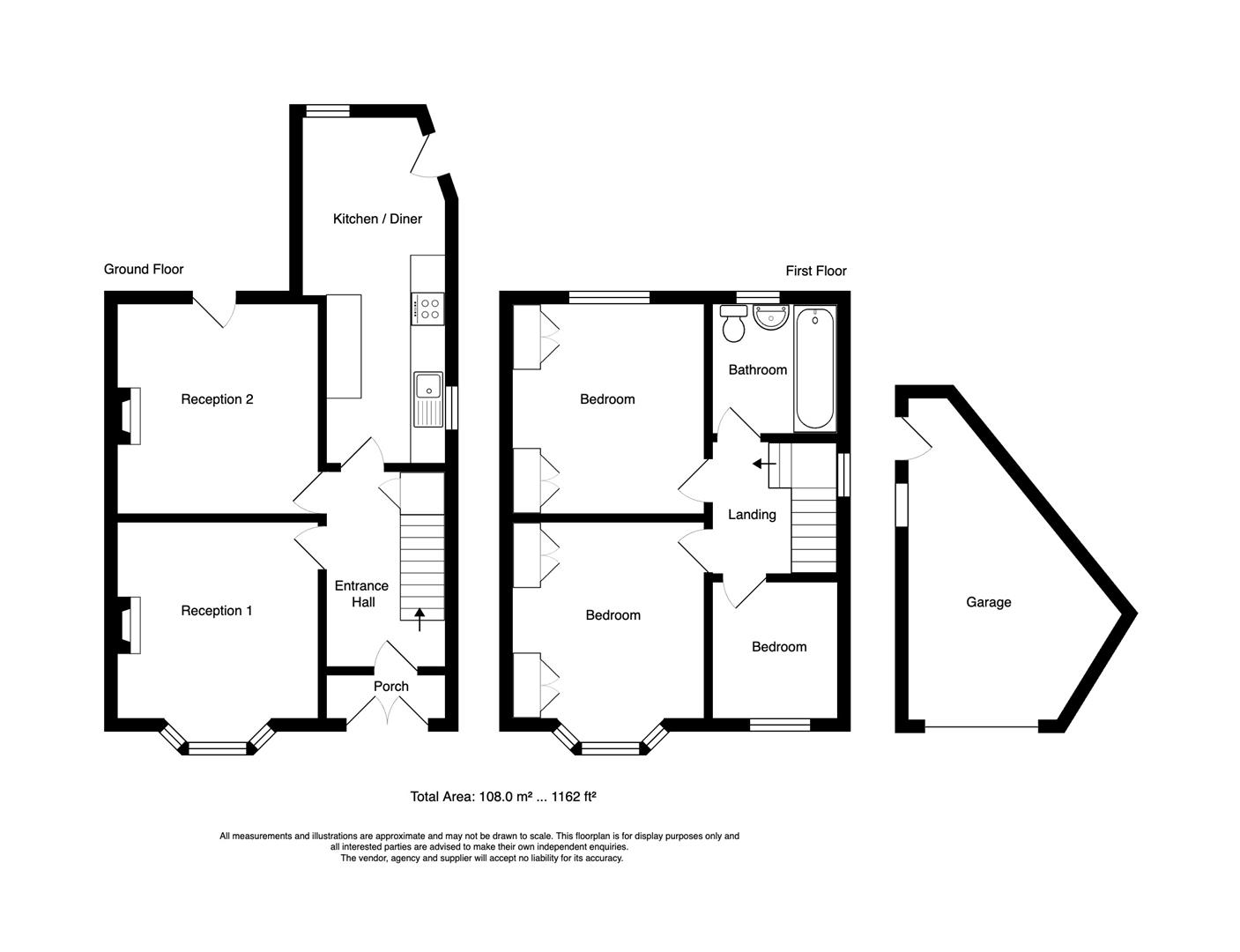
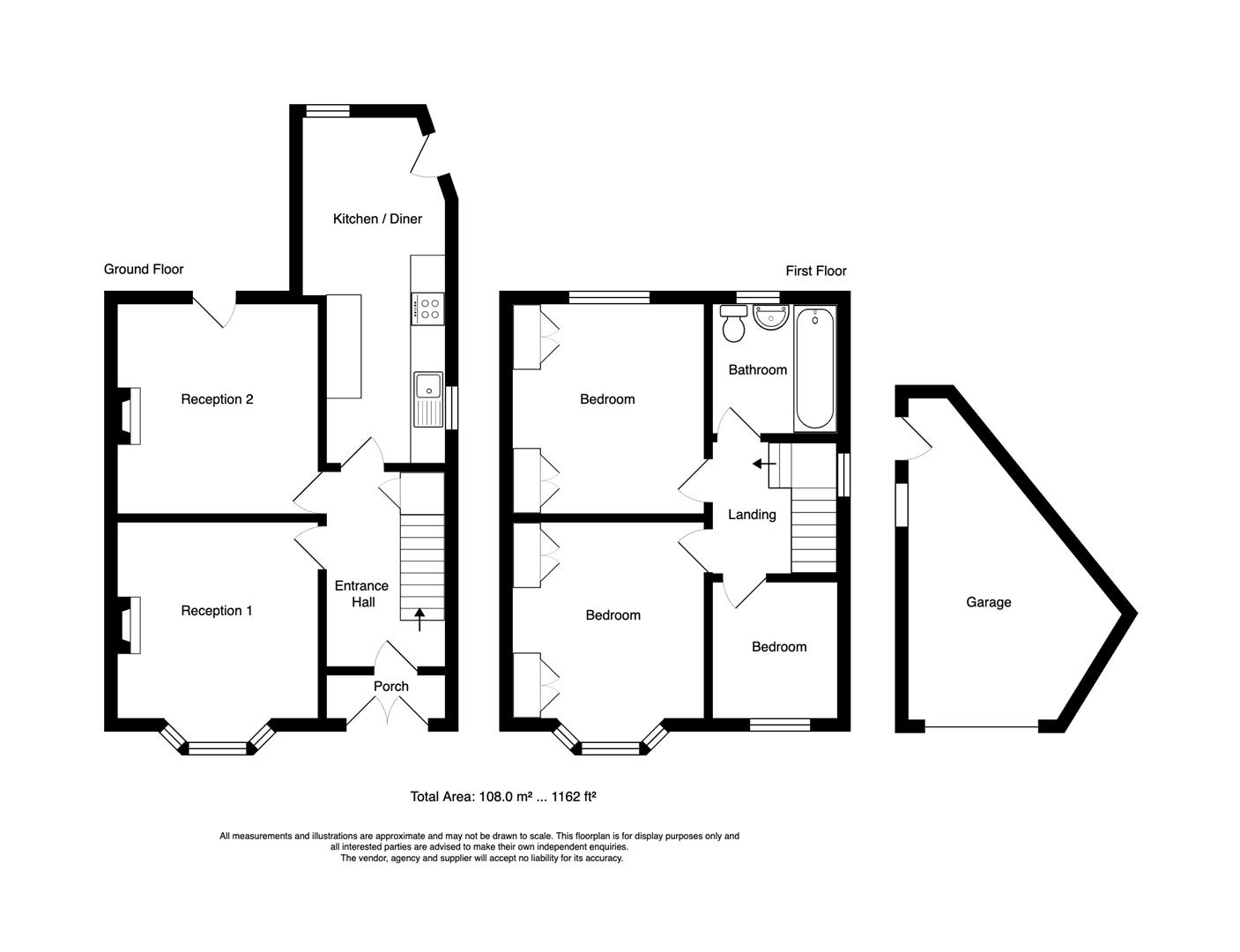
A well presented Three Bedroom extended SEMI DETACHED family home, walking distance to KNIGHTON PARK.

The home briefly comprises porch, entrance hallway, two reception rooms, Kitchen-diner to the ground floor. On the first floor there are three bedrooms and a bathroom.

To the rear is a courtyard garden.

The house benefits from off street parking to the front and a GARAGE.

Popular location being close to all the popular schools, places of worship, Leicester City Centre and Station.

PORCH
Pair of double glazed doors to front aspect and two double glazed windows to front elevation, front door leading into.

HALLWAY
Featured coloured glass windows to front aspect, radiator, staircase rising to first floor, under stairs cupboard with frosted double glazed window to side, fuse box and meter.

RECEPTION ONE
3.89 to bay x 3.55 (12'9" to bay x 11'7") - Electric fireplace inset with brick surround, coving, radiator, double glazed bay window to front aspect.

RECEPTION TWO
3.69 x 3.55 (12'1" x 11'7") - Gas fire with wooden surround and tiled inset, coving, radiator, double glazed door and windows to rear aspect.

KITCHEN DINER
5.51 x 2.57 max (18'0" x 8'5" max) - Fitted units with worktops and tiled splashbacks, four ring gas hob with oven and extractor, sink with drainer, integrated washing machine and fridge, spotlights, radiator, part frosted double glazed window to side aspect, frosted double glazed door to side aspect and double glazed window to rear aspect.

DINING AREA

LANDING
Access to loft, double glazed patterned window to side aspect.

BEDROOM ONE
4.04 to bay 3.58 (13'3" to bay 11'8" ) - Fitted wardrobes, radiator, double glazed bay window to front aspect.

BEDROOM TWO
3.53 x 3.69 (11'6" x 12'1") - Fitted wardrobes, radiator, double glazed window to rear aspect.

BEDROOM THREE
2.08 x 2.39 (6'9" x 7'10") - Radiator, double glazed window to front aspect.

BATHROOM
2.36 x 2.10 (7'8" x 6'10") - Bath with mains shower, built in cupboard housing boiler and water tank, pedestal wash hand basin, low level W/C, radiator, spot lights, part tiled walls,

OUTSIDE
Courtyard garden tapering at the end, established shrubs and flower bed, water tap, power.

To the front of the house is a low level brick wall, blocked paved driveway, lawned area with mature plants and shrubs.

GARAGE
5.20 max x 3.66 max reducing to 1.69 (17'0" max x - Electric door, power, double glazed frosted window to side aspect, door to side elevation.

FREE VALUATION
Thinking of selling? We would be delighted to provide you with a free market appraisal/valuation of your own property. Please contact Barkers to arrange a mutually convenient appointment on Tel: 0116 270 9394

GENERAL REMARKS
We are unable to confirm whether certain items in the property are in fully working order (i.e. gas, electric, plumbing etc.) The property is offered for sale on this basis. Prospective purchasers are advised to inspect the property and commission expert reports where appropriate. Barkers Estate Agents have a policy of seeking to obtain any copy guarantees / invoices relating to works that may have been carried out by a previous or existing owner. Please ask one of our staff members to check files for any relevant documentation that have come to our attention.
Photographs are reproduced for general information and it must not be inferred that any items shown are included in the sale with the property.
MORTGAGES
Barkers Estate Agents offer the services of an independent mortgage and financial adviser. Please ask an advisor for further information.
VIEWING TIMES
Viewing strictly by appointment through Barkers Estate Agents.
Hours of Business:
Monday to Friday 9am -5pm
Saturday 9am - 4pm

AML DISCLAIMER
In accordance with current Anti-Money Laundering and Proceeds of Crime Legislation, all buyers are required to complete identity and verification checks.
These checks are carried out on our behalf of Moverly, our approved AML provider.
A £50 fee (incl. vat) covers required data and any manual checks.
This must be paid before we can issue a memorandum of sale.
The fee is non-refundable and paid directly to Moverly. We receive a portion of this fee for facilitating the checks

Additional Information
Tenure:
Freehold
Council Tax Band:
B
Rooms
PORCH

Pair of double glazed doors to front aspect and two double glazed windows to front elevation, front door leading into.

HALLWAY

Featured coloured glass windows to front aspect, radiator, staircase rising to first floor, under stairs cupboard with frosted double glazed window to side, fuse box and meter.

RECEPTION ONE

Electric fireplace inset with brick surround, coving, radiator, double glazed bay window to front aspect.

RECEPTION TWO

Gas fire with wooden surround and tiled inset, coving, radiator, double glazed door and windows to rear aspect.

KITCHEN DINER

Fitted units with worktops and tiled splashbacks, four ring gas hob with oven and extractor, sink with drainer, integrated washing machine and fridge, spotlights, radiator, part frosted double glazed window to side aspect, frosted double glazed door to side aspect and double glazed window to rear aspect.

DINING AREA
LANDING

Access to loft, double glazed patterned window to side aspect.

BEDROOM ONE

Fitted wardrobes, radiator, double glazed bay window to front aspect.

BEDROOM TWO

Fitted wardrobes, radiator, double glazed window to rear aspect.

BEDROOM THREE

Radiator, double glazed window to front aspect.

BATHROOM

Bath with mains shower, built in cupboard housing boiler and water tank, pedestal wash hand basin, low level W/C, radiator, spot lights, part tiled walls,

OUTSIDE

Courtyard garden tapering at the end, established shrubs and flower bed, water tap, power.

To the front of the house is a low level brick wall, blocked paved driveway, lawned area with mature plants and shrubs.

GARAGE

Electric door, power, double glazed frosted window to side aspect, door to side elevation.

FREE VALUATION

Thinking of selling? We would be delighted to provide you with a free market appraisal/valuation of your own property. Please contact Barkers to arrange a mutually convenient appointment on Tel: 0116 270 9394

GENERAL REMARKS

We are unable to confirm whether certain items in the property are in fully working order (i.e. gas, electric, plumbing etc.) The property is offered for sale on this basis. Prospective purchasers are advised to inspect the property and commission expert reports where appropriate. Barkers Estate Agents have a policy of seeking to obtain any copy guarantees / invoices relating to works that may have been carried out by a previous or existing owner. Please ask one of our staff members to check files for any relevant documentation that have come to our attention.
Photographs are reproduced for general information and it must not be inferred that any items shown are included in the sale with the property.
MORTGAGES
Barkers Estate Agents offer the services of an independent mortgage and financial adviser. Please ask an advisor for further information.
VIEWING TIMES
Viewing strictly by appointment through Barkers Estate Agents.
Hours of Business:
Monday to Friday...

AML DISCLAIMER

In accordance with current Anti-Money Laundering and Proceeds of Crime Legislation, all buyers are required to complete identity and verification checks.
These checks are carried out on our behalf of Moverly, our approved AML provider.
A £50 fee (incl. vat) covers required data and any manual checks.
This must be paid before we can issue a memorandum of sale.
The fee is non-refundable and paid directly to Moverly. We receive a portion of this fee for facilitating the checks


Mortgage calculator

Calculate Your Stamp Duty
£
Results
Stamp Duty To Pay:
Effective Rate:
Tax Band % Taxable Sum Tax

Ashclose Avenue, Leicester

Struggling to find a property? Get in touch and we'll help you find your ideal property.

Interested in viewing this property?
Book a Viewing
Main menu