Nicholas Humphreys

2 bedroom End of terrace house For Sale

Cecilia Road, Leicester

£220,000 | Available

2 Bedrooms
1 Bathrooms
2 Receptions

Leicester (Barkers, Queens Rd)

79 Queens Road, 
Leicester, 
LE2 1TT
Standout Features

Property Description

A TWO BEDROOM end of terrace property offered for sale with NO UPPER CHAIN in CLARENDON PARK.

The property comprises of TWO RECEPTION ROOMS, and kitchen to the ground floor.

On the first floor are TWO BEDROOMS and a bathroom.

To the rear is a walled courtyard garden with gate to the rear.

Great location as you are walking distance from Queens Road with all its shops and restaurants and Leicester train station.

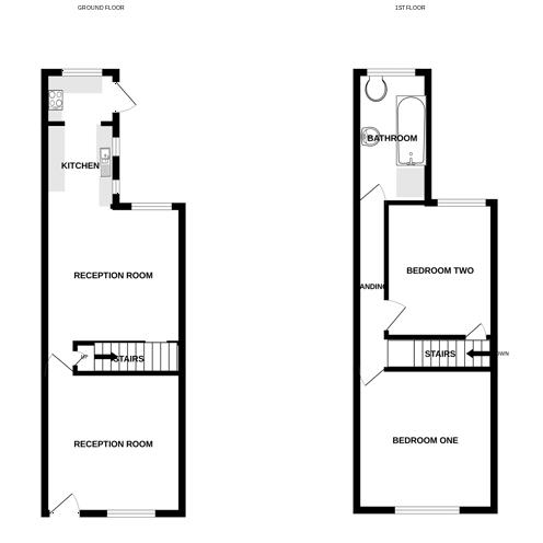
RECEPTION ONE
3.41 x 3.30 (11'2" x 10'9") - Double glazed front door, cast iron fireplace with wooden surround and tiled hearth, picture rail, coving, meter cupboard, radiator, under stairs cupboard, two double glazed windows to front aspect.

RECEPTION TWO
3.45 x 3.31 (11'3" x 10'10") - Cast iron fireplace, coving, picture rail, coving, radiator, double glazed window to rear aspect.

KITCHEN
2.42 x 1.79 (7'11" x 5'10" ) - Sink with drainer, space for fridge freezer, fitted units with worktops, part tiled wall, 'Worcester' boiler, radiator, two double glazed windows to side aspect.

OTHER ASPECT
1.49 x 1.48 (4'10" x 4'10") - Worktop with tiled splashback, electric hob, oven and extractor, plumbing for washing machine, double glazed window to rear aspect and double glazed door to side elevation.

LANDING

BEDROOM ONE
3.45 x 3.31 (11'3" x 10'10") - Cast iron fireplace, fitted wardrobe, radiator, two double glazed windows to front aspect.

BEDROOM TWO
3.44 x 2.33 (11'3" x 7'7") - Cast iron fireplace, built in cupboard with access to loft, radiator, double glazed window to rear aspect.

BATHROOM
2.41 x 1.81 (7'10" x 5'11") - Bath with electric shower, pedestal wash hand basin, low level W/C, built in cupboard, radiator, part tiled wall, part frosted double glazed window to rear aspect.

OUTSIDE
To the rear of the property is a paved walled courtyard garden, gate to rear aspect.

FREE VALUATION
Thinking of selling? We would be delighted to provide you with a free market appraisal/valuation of your own property. Please contact Barkers to arrange a mutually convenient appointment on Tel: 0116 270 9394

GENERAL REMARKS
We are unable to confirm whether certain items in the property are in fully working order (i.e. gas, electric, plumbing etc.) The property is offered for sale on this basis. Prospective purchasers are advised to inspect the property and commission expert reports where appropriate. Barkers Estate Agents have a policy of seeking to obtain any copy guarantees / invoices relating to works that may have been carried out by a previous or existing owner. Please ask one of our staff members to check files for any relevant documentation that have come to our attention.
Photographs are reproduced for general information and it must not be inferred that any items shown are included in the sale with the property.
MORTGAGES
Barkers Estate Agents offer the services of an independent mortgage and financial adviser. Please ask an advisor for further information.
VIEWING TIMES
Viewing strictly by appointment through Barkers Estate Agents.
Hours of Business:
Monday to Friday 9am -5pm
Saturday 9am - 4pm

AML DISCLAIMER
In accordance with current Anti-Money Laundering and Proceeds of Crime Legislation, all buyers are required to complete identity and verification checks.
These checks are carried out on our behalf of Moverly, our approved AML provider.
A £50 fee (incl. vat) covers required data and any manual checks.
This must be paid before we can issue a memorandum of sale.
The fee is non-refundable and paid directly to Moverly. We receive a portion of this fee for facilitating the checks

Additional Information
Tenure:
Freehold
Council Tax Band:
A
Rooms
RECEPTION ONE

Double glazed front door, cast iron fireplace with wooden surround and tiled hearth, picture rail, coving, meter cupboard, radiator, under stairs cupboard, two double glazed windows to front aspect.

RECEPTION TWO

Cast iron fireplace, coving, picture rail, coving, radiator, double glazed window to rear aspect.

KITCHEN

Sink with drainer, space for fridge freezer, fitted units with worktops, part tiled wall, 'Worcester' boiler, radiator, two double glazed windows to side aspect.

OTHER ASPECT

Worktop with tiled splashback, electric hob, oven and extractor, plumbing for washing machine, double glazed window to rear aspect and double glazed door to side elevation.

LANDING
BEDROOM ONE

Cast iron fireplace, fitted wardrobe, radiator, two double glazed windows to front aspect.

BEDROOM TWO

Cast iron fireplace, built in cupboard with access to loft, radiator, double glazed window to rear aspect.

BATHROOM

Bath with electric shower, pedestal wash hand basin, low level W/C, built in cupboard, radiator, part tiled wall, part frosted double glazed window to rear aspect.

OUTSIDE

To the rear of the property is a paved walled courtyard garden, gate to rear aspect.

FREE VALUATION

Thinking of selling? We would be delighted to provide you with a free market appraisal/valuation of your own property. Please contact Barkers to arrange a mutually convenient appointment on Tel: 0116 270 9394

GENERAL REMARKS

We are unable to confirm whether certain items in the property are in fully working order (i.e. gas, electric, plumbing etc.) The property is offered for sale on this basis. Prospective purchasers are advised to inspect the property and commission expert reports where appropriate. Barkers Estate Agents have a policy of seeking to obtain any copy guarantees / invoices relating to works that may have been carried out by a previous or existing owner. Please ask one of our staff members to check files for any relevant documentation that have come to our attention.
Photographs are reproduced for general information and it must not be inferred that any items shown are included in the sale with the property.
MORTGAGES
Barkers Estate Agents offer the services of an independent mortgage and financial adviser. Please ask an advisor for further information.
VIEWING TIMES
Viewing strictly by appointment through Barkers Estate Agents.
Hours of Business:
Monday to Friday...

AML DISCLAIMER

In accordance with current Anti-Money Laundering and Proceeds of Crime Legislation, all buyers are required to complete identity and verification checks.
These checks are carried out on our behalf of Moverly, our approved AML provider.
A £50 fee (incl. vat) covers required data and any manual checks.
This must be paid before we can issue a memorandum of sale.
The fee is non-refundable and paid directly to Moverly. We receive a portion of this fee for facilitating the checks


Mortgage calculator

Calculate Your Stamp Duty
£
Results
Stamp Duty To Pay:
Effective Rate:
Tax Band % Taxable Sum Tax

Cecilia Road, Leicester

Struggling to find a property? Get in touch and we'll help you find your ideal property.

Interested in viewing this property?
Book a Viewing
Main menu