2 bedroom Apartment Sold STC

High Street, Evington, Leicester

£150,000 | SSTC

2 Bedrooms
1 Bathrooms
1 Receptions

Leicester (Barkers, Queens Rd)

79 Queens Road, 
Leicester, 
LE2 1TT
Standout Features

Property Description
A well presented TWO DOUBLE BEDROOM maisonette, situated in the popular Village of EVINGTON.

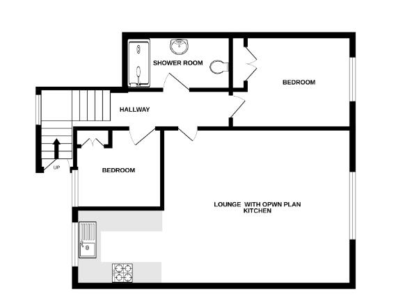
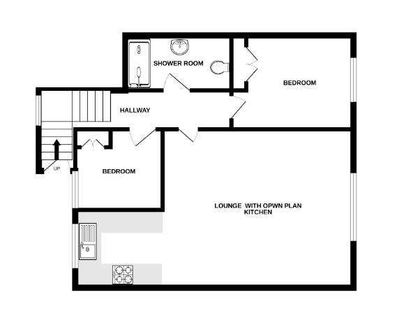
Benefiting from your OWN ENTRANCE with staircase rising to the FIRST FLOOR, you have a spacious landing with lounge boasting a VAULTED CEILING, OPEN PLAN kitchen, two double bedrooms and a shower room.

The property has its OWN PARKING SPACE and a LONG LEASE and is being sold with NO UPPER CHAIN

Well located for public parks and walks, with regular bus route to both the city centre and Leicester General Hospital..

PRIVATE GROUND FLOOR ENTRANCE
Front door, radiator, staircase rising to first floor landing.

FIRST FLOOR LANDING
Access to loft, two built in cupboards, radiator, spot lights, double glazed window and sky light to front aspect.

LOUNGE
4.49 x 3.71 max. (14'8" x 12'2" max.) - Vaulted ceiling, two radiators, double glazed window to side aspect.

OTHER ASPECT

OPEN PLAN KITCHEN
2.53 x 2.47 (8'3" x 8'1") - Fitted units with work tops and tiled splash backs, sink with drainer, built in four ring gas hob with oven and extractor above, 'Worcester' boiler, plumbing for washing machine, space for fridge freezer, spot lights.

BEDROOM ONE
3.51 x 3.28 (11'6" x 10'9") - Fitted wardrobe, radiator, spot lights, double glazed window to side aspect.

BEDROOM TWO
3.65 x 2.67 max (11'11" x 8'9" max) - Fitted wardrobe, radiator, spot lights, double glazed window and Velux to side aspect.

SHOWER ROOM
2.61 max x 1.71 max (8'6" max x 5'7" max) - Walk-in shower cubicle, low level wc, vanity unit, heated towel rail, radiator, part tiled walls, spot lights.

COMMUNAL GARDENS
The property benefits from communal gardens to the front and rear elevations with bin store area:

ALLOCATED PARKING
Located just by the entrance to the property.

The property benefits from one allocated parking space

LEASEHOLD DETAILS
Managing agents: Butlins
Lease: 999 years from 2nd December 2003.
Service Charges: £725.58 per 6 months
Includes: window cleaning, gardening and cleaning of communal areas
Ground Rent: £150 per annum

FREE VALUATION
Thinking of selling? We would be delighted to provide you with a free market appraisal/valuation of your own property. Please contact Barkers to arrange a mutually convenient appointment on Tel: 0116 270 9394

GENERAL REMARKS
We are unable to confirm whether certain items in the property are in fully working order (i.e. electric, plumbing etc.) The property is offered for sale on this basis. Prospective purchasers are advised to inspect the property and commission expert reports where appropriate. Barkers Estate Agents have a policy of seeking to obtain any copy guarantees / invoices relating to works that may have been carried out by a previous or existing owner. Please ask one of our staff members to check files for any relevant documentation that have come to our attention.
Photographs are reproduced for general information and it must not be inferred that any items shown are included in the sale with the property.
MONEY LAUNDERING
Under the Protection Against Money Laundering and the Proceeds of Crime Act 2002, we must point out that any successful purchasers who are proceeding with a purchase will be asked for identification i.e. passport or driving licence or recent utility bill. This evidence will be required prior to solicitors being instructed in the purchase of the sale of a property.
MORTGAGES
Barkers Estate Agents offer the services of an independent mortgage and financial adviser. Please ask an advisor for further information.
VIEWING TIMES
Viewing strictly by appointment through Barkers Estate Agents.
Hours of Business:
Monday to Friday 9am -5.30pm,
Saturday 9am - 4pm,

DISCLAIMER
There are Two Separate Titles currently on this property.

Additional Information
Ground Rent:
£150 per year
Service Charge:
£1,400 per year
Council Tax Band:
C
Rooms
PRIVATE GROUND FLOOR ENTRANCE
Front door, radiator, staircase rising to first floor landing.
FIRST FLOOR LANDING
Access to loft, two built in cupboards, radiator, spot lights, double glazed window and sky light to front aspect.
LOUNGE
Vaulted ceiling, two radiators, double glazed window to side aspect.
OTHER ASPECT
OPEN PLAN KITCHEN
Fitted units with work tops and tiled splash backs, sink with drainer, built in four ring gas hob with oven and extractor above, 'Worcester' boiler, plumbing for washing machine, space for fridge freezer, spot lights.
BEDROOM ONE
Fitted wardrobe, radiator, spot lights, double glazed window to side aspect.
BEDROOM TWO
Fitted wardrobe, radiator, spot lights, double glazed window and Velux to side aspect.
SHOWER ROOM
Walk-in shower cubicle, low level wc, vanity unit, heated towel rail, radiator, part tiled walls, spot lights.
COMMUNAL GARDENS
The property benefits from communal gardens to the front and rear elevations with bin store area:
ALLOCATED PARKING
Located just by the entrance to the property.

The property benefits from one allocated parking space
LEASEHOLD DETAILS
Managing agents: Butlins
Lease: 999 years from 2nd December 2003.
Service Charges: £725.58 per 6 months
Includes: window cleaning, gardening and cleaning of communal areas
Ground Rent: £150 per annum
FREE VALUATION
Thinking of selling? We would be delighted to provide you with a free market appraisal/valuation of your own property. Please contact Barkers to arrange a mutually convenient appointment on Tel: 0116 270 9394
GENERAL REMARKS
We are unable to confirm whether certain items in the property are in fully working order (i.e. electric, plumbing etc.) The property is offered for sale on this basis. Prospective purchasers are advised to inspect the property and commission expert reports where appropriate. Barkers Estate Agents have a policy of seeking to obtain any copy guarantees / invoices relating to works that may have been carried out by a previous or existing owner. Please ask one of our staff members to check files for any relevant documentation that have come to our attention.
Photographs are reproduced for general information and it must not be inferred that any items shown are included in the sale with the property.
MONEY LAUNDERING
Under the Protection Against Money Laundering and the Proceeds of Crime Act 2002, we must point out that any successful purchasers who are proceeding with a purchase will be asked for identification i.e. passport or driving licence or recent utility bill. This...
DISCLAIMER
There are Two Separate Titles currently on this property.

Mortgage calculator

Calculate Your Stamp Duty
£
Results
Stamp Duty To Pay:
Effective Rate:
Tax Band % Taxable Sum Tax

High Street, Evington, Leicester

Struggling to find a property? Get in touch and we'll help you find your ideal property.

Interested in viewing this property?
Book a Viewing
Main menu