Nicholas Humphreys

Commercial Property For Sale

Upper Market Square, Hanley, ST1

£1,000,000 | Available

Stoke on Trent

42 Piccadilly, 
Hanley, 
Stoke on Trent, 
ST1 1EG

Property Description

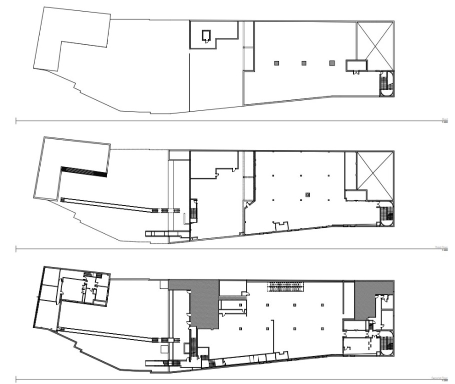
A landmark freehold retail opportunity in the heart of Stoke-on-Trent. Once home to a prominent Marks & Spencer store. A pre app has been submitted to the council for a mixed use scheme, comprising of retail, leisure and residential. 

Introducing 11 Upper Market Square, Hanley, a landmark freehold retail opportunity in the heart of Stoke-on-Trent. Once home to a prominent Marks & Spencer store, this striking building sits on the pedestrianised Upper Market Square—one of the busiest retail hubs in the city centre.

The property is currently let for £60,000 p/a. The occupying business is flexible and happy to sign a long lease for the ground floor only or to relocate their business should the new owner wish to have vacant possession. The current owner has submitted a pre app to the council in 2022 for the a mixed use development. Following feedback from the council the vendor has further plans drawn up consisting of a mix of retail, leisure and residential. There would be 64 apartments and 94 beds.

The vendor has spent a considerable amount of money on reports which are all available for inspection, as is the full response from the council, a snippet of the initial response is noted below:

"The application site is located within the defined City Centre, within the Primary Shopping Area. Retention of retail use at ground floor level is therefore welcomed, as is the introduction of office development at upper floors as this would complement the existing centre and be supported by Policy ASP1 of the Core Strategy and the National Planning Policy Framework (NPPF). The policies are also supportive of the introduction of a residential market and high density living within the City Centre."

Prime Location

Positioned at the junction of Parliament Row, Tontine Square, and adjacent to The Potteries (Intu) Shopping Centre, it enjoys exceptional footfall. Direct neighbours include Boots, Costa, Argos, Holland & Barrett, and Halifax

Transport Links

Easily accessible via Staffordshire metro bus routes, with nearby Hanley bus station and Stoke-on-Trent railway station. Direct links to the M6 and A50 roads support regional connectivity .

REFERRAL ARRANGEMENT NOTE
Nicholas Humphreys Estate Agents will sometimes refer sellers (and will offer to refer buyers) to Hargreaves Gilman, Altium Law & Simply Conveyancing for conveyancing services. It is your decision as to whether or not you choose to deal with these conveyancers. Should you decide to use the conveyancers named above, you should know that Nicholas Humphreys Estate Agents would receive a referral fee of up to £240 including VAT from them, for recommending you to them.
Nicholas Humphreys Estate Agents will sometimes refer buyers to East Cheshire Mortgages and The Mortgage Advisor for mortgage services. . It is your decision as to whether or not you choose to deal with these mortgage brokers. Should you decide to use the broker named above, you should know that Nicholas Humphreys Estate Agents would receive a referral fee of up to £250 from them, for recommending you to them.
Nicholas Humphreys Estate Agents will sometimes refer buyers to Countrywide Surveyors. It is your decision as to whether or not you choose to deal with this company. Should you decide to use the surveyor named above, you should know that Nicholas Humphreys Estate Agents would receive a referral fee of £100 from them, for recommending you to them. EPC rating: C. Council tax band: X, Tenure: Freehold,

Additional Information
Tenure:
Freehold

Mortgage calculator

Calculate Your Stamp Duty
£
Results
Stamp Duty To Pay:
Effective Rate:
Tax Band % Taxable Sum Tax

Upper Market Square, Hanley, ST1

Struggling to find a property? Get in touch and we'll help you find your ideal property.

Interested in viewing this property?
Book a Viewing
Main menu