Nicholas Humphreys

5 bedroom Terraced House To Let

Downs Road, Canterbury - Close to UKC

£600 PCM | Available

5 Bedrooms
2 Bathrooms
1 Receptions

Canterbury

39 Palace Street, 
Canterbury, 
CT1 2DZ
Letting Details
Deposit:
£400
Standout Features

Property Description

BILLS INCLUDED* 5 Bed Student Home - UKC - Available 1st July.

REF: RL0104

BILLS INCLUDED* 5 Bed Student Home - UKC - Available 1st July.

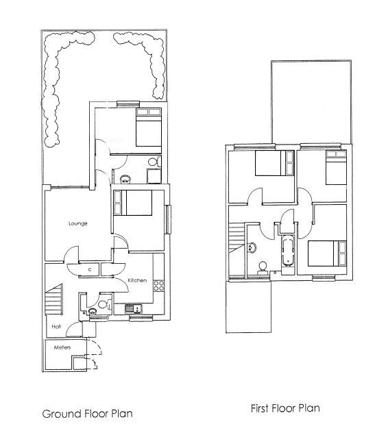
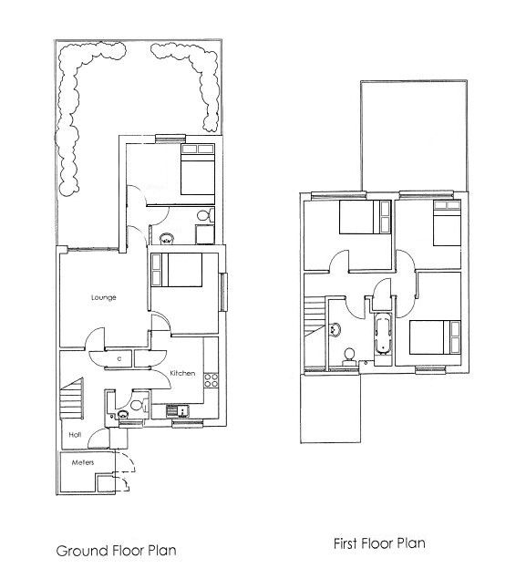
- 5 Double Bedrooms
- Bills Included; Gas, Electric, Water, Waste Water and TV licence*
- Internet Contribution from the Landlord
- 2 Bathrooms
- Free On-Street Parking
- Deposit: £400pp
- EPC Rating C

Council Tax band C

RESERVE TODAY £99.00PP

*All bills included package subject to fair usage policy

Deposit: £400
Holding Deposit: £99


Downs Road, Canterbury - Close to UKC

Struggling to find a property? Get in touch and we'll help you find your ideal property.

Interested in viewing this property?
Book a Viewing
Main menu