Nicholas Humphreys

2 bedroom Property To Let

West Avenue, Leicester

£1,150 PCM | Available

2 Bedrooms
2 Receptions

Leicester (Barkers, Queens Rd)

79 Queens Road, 
Leicester, 
LE2 1TT
Letting Details
Deposit:
£1,326
Standout Features

Property Description

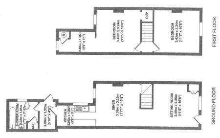
BARKERS are pleased to offer a MID TERRACED property in a popular CLARENDON PARK location providing good access to the LRI and popular Queens Road. The accommodation comprises of a through lounge/diner, kitchen with oven and hob, fridge, lobby area with freezer, washing machine, dishwasher and tumble dryer and a ground floor bathroom with a shower over the bath. Stairs to TWO DOUBLE BEDROOMS and a STUDY/DRESSING ROOM. Available FURNISHED the property benefits from GCH & DG and has a courtyard garden. Viewing is HIGHLY RECOMMENDED.


BARKERS are pleased to offer a MID TERRACED property in a popular CLARENDON PARK location providing good access to the LRI and popular Queens Road. The accommodation comprises of a through lounge/diner, kitchen with oven and hob, fridge, lobby area with freezer, washing machine, dishwasher and tumble dryer and a ground floor bathroom with a shower over the bath. Stairs to TWO DOUBLE BEDROOMS and a STUDY/DRESSING ROOM. Available FURNISHED the property benefits from GCH & DG and has a courtyard garden. Viewing is HIGHLY RECOMMENDED. HOLDING DEPOSIT £250


West Avenue, Leicester

Struggling to find a property? Get in touch and we'll help you find your ideal property.

Interested in viewing this property?
Book a Viewing
Main menu