Nicholas Humphreys

5 bedroom Terraced House For Sale

Severn Street, Leicester

£330,000 | Available

5 Bedrooms
3 Bathrooms
3 Receptions

Leicester (Barkers, Queens Rd)

79 Queens Road, 
Leicester, 
LE2 1TT
Standout Features

Property Description

INVESTMENT OPPORTUNITY Historic SEVERN SHARE HMO in HIGHFIELDS.

An imposing period house located.

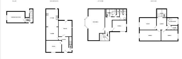
Arranged over THREE FLOORS with a BASEMENT.

On the ground floor there are two reception rooms (previously used as bedrooms), lounge area and kitchen.

The first floor comprises two bedrooms and two shower rooms.

The third floor has three further bedrooms and shower room.

Courtyard Garden and available with NO UPPER CHAIN.

The area of Highfields has great access to the Leicester University, Leicester City Centre, the local shops restaurants and bars which can be either located on the London Road or on Evington Road.

Victoria Park can be easily accessed from the house with links to the motorway, the Leicester Royal Infirmary and the Leicester General Hospital.

ENTRANCE HALL
Front door, radiator, staircase rising to the first floor

RECEPTION ONE
4.61 to bay x 3.70 (15'1" to bay x 12'1") - Bay window to front aspect, part coving, radiator.

RECEPTION TWO
3.96 x 3.01 (12'11" x 9'10") - Radiator, door with two windows either side to rear aspect.

LOUNGE AREA
5.10 x 2.37 (16'8" x 7'9") - Radiator.

KITCHEN
4.26 x 2.46 (13'11" x 8'0") - Fitted units with worktops and tiled splash backs, sink with drainer, four ring gas hob, oven and extractor, boiler, plumbing for washing machine, tiled floor, door to rear aspect.

BASEMENT
4.59 x 4.59 (15'0" x 15'0") - Meter cupboard, radiator, double glazed window to front aspect.

FIRST FLOOR LANDING
Under stairs cupboard, staircase rising to second floor.

BEDROOM ONE
4.61 to bay x 5.58 (15'1" to bay x 18'3") - Radiator, bay window to front aspect.

BEDROOM TWO
3.97 x 3.01 (13'0" x 9'10") - Radiator, window to rear aspect.

SHOWER ROOM ONE
1.63 x 1.56 (5'4" x 5'1") - Shower cubicle with electric shower, low level W/C, wash hand basin, radiator, tiled floor and walls.

SHOWER ROOM TWO
2.35 x 1.58 (7'8" x 5'2") - Shower cubicle with electric shower, low level W/C, pedestal wash hand basin, part tiled walls and floor, two windows to rear aspect.

SECOND FLOOR LANDING
Access to loft

BEDROOM THREE
4.84 x 2.56 (15'10" x 8'4") - Radiator, window to front aspect.

BEDROOM FOUR
4.20 x 2.54 (13'9" x 8'3") - Radiator, window to rear aspect.

BEDROOM FIVE
3.92 x 2.88 (12'10" x 9'5") - Radiator, window to front aspect.

INNER HALLWAY
Radiator.

SEPERATE W/C
Pedestal wash hand basin, low level W/C.

SHOWER ROOM
3.32 x 1.62 (10'10" x 5'3") - Shower cubicle with electric shower, low level W/C, pedestal wash hand basin, window to rear aspect.

OUTSIDE
Small courtyard garden.

FREE VALUATION
Thinking of selling? We would be delighted to provide you with a free market appraisal/valuation of your own property. Please contact Barkers to arrange a mutually convenient appointment on Tel: 0116 270 9394

GENERAL REMARKS
We are unable to confirm whether certain items in the property are in fully working order (i.e. gas, electric, plumbing etc.) The property is offered for sale on this basis. Prospective purchasers are advised to inspect the property and commission expert reports where appropriate. Barkers Estate Agents have a policy of seeking to obtain any copy guarantees / invoices relating to works that may have been carried out by a previous or existing owner. Please ask one of our staff members to check files for any relevant documentation that have come to our attention.
Photographs are reproduced for general information and it must not be inferred that any items shown are included in the sale with the property.
MONEY LAUNDERING
Under the Protection Against Money Laundering and the Proceeds of Crime Act 2002, we must point out that any successful purchasers who are proceeding with a purchase will be asked for identification i.e. passport or driving licence or recent utility bill. This evidence will be required prior to solicitors being instructed in the purchase of the sale of a property.
MORTGAGES
Barkers Estate Agents offer the services of an independent mortgage and financial adviser. Please ask an advisor for further information.
VIEWING TIMES
Viewing strictly by appointment through Barkers Estate Agents.
Hours of Business:
Monday to Friday 9am -5pm
Saturday 9am - 4pm

AML DISCLAIMER
In accordance with current Anti-Money Laundering and Proceeds of Crime Legislation, all buyers are required to complete identity and verification checks.
These checks are carried out on our behalf of Moverly, our approved AML provider.
A £50 fee (incl. vat) covers required data and any manual checks.
This must be paid before we can issue a memorandum of sale.
The fee is non-refundable and paid directly to Moverly. We receive a portion of this fee for facilitating the checks

Additional Information
Tenure:
Freehold
Council Tax Band:
C

Mortgage calculator

Calculate Your Stamp Duty
£
Results
Stamp Duty To Pay:
Effective Rate:
Tax Band % Taxable Sum Tax

Severn Street, Leicester

Struggling to find a property? Get in touch and we'll help you find your ideal property.

Interested in viewing this property?
Book a Viewing
Main menu