5 bedroom Detached house Sold STC

Hollies Way, Bushby, Leicester

£600,000 | SSTC

5 Bedrooms
2 Bathrooms
2 Receptions

Leicester (Barkers, Queens Rd)

79 Queens Road, 
Leicester, 
LE2 1TT
Standout Features

Property Description

A Fabulously appointed EXTENDED FIVE BEDROOM detached family home located in this quiet CUL DE SAC in the desirable village of BUSHBY.

As soon as you walk in through the front door you are greeted with this spacious hallway with staircase rising to the first floor, downstairs W/C, extended lounge with log burner, dining kitchen, conservatory and reception three on the ground floor.

On the first floor there are five bedrooms and family bathroom, with the main bedroom benefiting from an en-suite shower room and balcony.

To the rear is a well established garden mainly laid to lawn with DECKING and PATIO area benefiting from a HOT TUB.

Well located and in the catchment area for Gartree and Beauchamp college, everyday local amenities, City hospitals and the City Centre. To the front of the home is a driveway for several vehicles and integral double garage.

Early Viewing Highly Recommended.

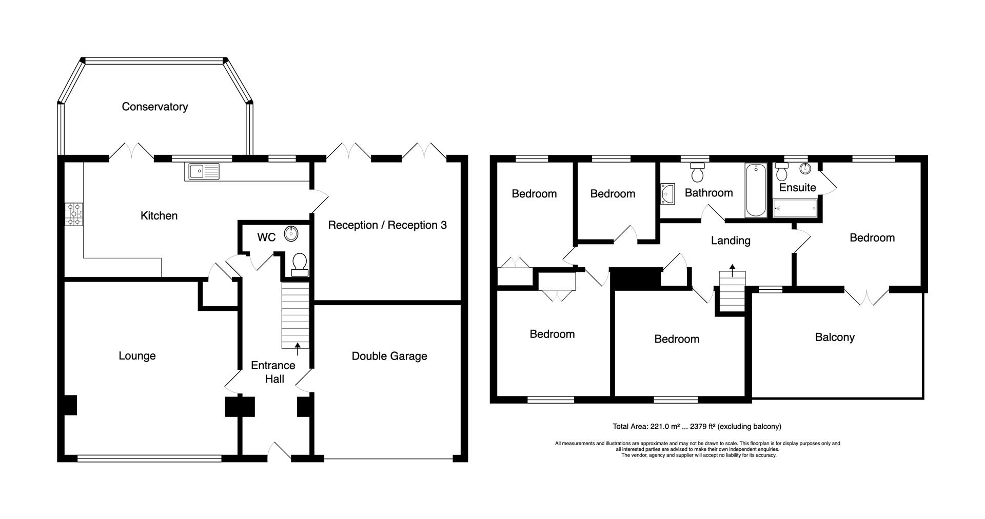
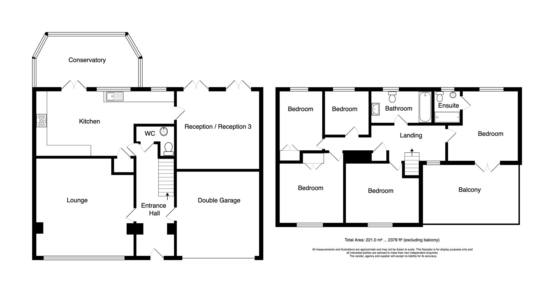
ENTRANCE HALLWAY
7.20 x 2.36 (23'7" x 7'8") - Double glazed front door with windows either side to front aspect, staircase rising to first floor, radiator, under stairs cupboard,

LOUNGE
5.57 x 5.58 (18'3" x 18'3") - Extended Lounge, free standing cast iron log burner with granite hearth, coving, spots lights, two radiators and double glazed window to front aspect.

OTHER ASPECT

CLOAKROOM
2.11 mx x 1.58 (6'11" mx x 5'2") - Low level W/C, wash hand basin, spot lights and radiator:

DINING KITCHEN
7.90 max x 3.47 (25'11" max x 11'4") - Fitted units with worktops and tiled splash backs, range cooker, sink with drainer, integrated Bosch dishwasher and pull out bin, space for American fridge freezer, built in larder, radiator, coving, tiled floor, double glazed window to rear aspect and twin doors to rear leading into conservatory.

OTHER ASPECT

CONSERVATORY
5.70 max x 2.86 (18'8" max x 9'4") - Radiator, double glazed windows to side and rear aspects, double glazed doors to rear elevation leading out onto the patio garden.

RECEPTION THREE
4.62 x 4.17 (15'1" x 13'8") - Radiator, spot lights, two sets of double glazed doors to rear aspect leading to garden.

LANDING
With oak and glass balustrade stairs rising from the hallway, loft access, airing cupboard, additional storage cupboard and double glazed window to front elevation:

BEDROOM ONE
4.14m x 3.28m (13'7 x 10'9) - Radiator, double glazed window to rear aspect, pair of double glazed doors to front aspect leading onto the balcony.

EN-SUITE SHOWER ROOM
1.79 x 1.44 (5'10" x 4'8") - Walk in shower cubicle with mains shower and rain head shower head, vanity unit, low level W/C, tiled walls and floor, spot lights, double glazed frosted window to rear aspect.

BALCONY
4.83 x 3.13 (15'10" x 10'3") - The balcony is fitted with safety balustrade.

BEDROOM TWO
4.16 x 3.40 (13'7" x 11'1") - Coving, radiator, double glazed window to front aspect.

BEDROOM THREE
3.63 x 3.47 (11'10" x 11'4") - Built in wardrobe, radiator, double glazed window to front aspect.

BEDEROM FOUR
3.47 x 2.73 (11'4" x 8'11") - Fitted wardrobe, radiator, double glazed window to rear aspect.

BEDROOM FIVE
2.51 x 2.38 (8'2" x 7'9") - Radiator, double glazed window to rear aspect.

FAMILY BATHROOM
2.53 x 1.79 (8'3" x 5'10") - Bath with mains shower and rain head shower, fitted furniture providing storage with undermounted basin, low level W/C, heated towel rail, tiled floor and walls, spot lights, underfloor heating, frosted double glazed window to rear aspect.

INTEGRAL DOUBLE GARAGE
5.52 x 4.87 (18'1" x 15'11") - Housing gas and electric meters, solar panel controls, wall mounted 'Worcester' boiler, power & lighting, remote roller door to driveway and side door to entrance hallway:

OUTSIDE
To the front elevation is a lawn, with a tarmac driveway providing off road parking for several vehicles. The rear extends to an immaculate landscaped garden mainly laid to lawn edged with established beds and a raised block paved terrace, two further raised decking areas for al fresco dining and entertaining, a pebbled seating area and featuring a 'Hot Tub' with wooden gazebo over . Having neighbouring fenced boundaries, side gated entry,

FREE VALUATION
Thinking of selling? We would be delighted to provide you with a free market appraisal/valuation of your own property. Please contact Barkers to arrange a mutually convenient appointment on Tel: 0116 270 9394

GENERAL REMARKS
We are unable to confirm whether certain items in the property are in fully working order (i.e. gas, electric, plumbing etc.) The property is offered for sale on this basis. Prospective purchasers are advised to inspect the property and commission expert reports where appropriate. Barkers Estate Agents have a policy of seeking to obtain any copy guarantees / invoices relating to works that may have been carried out by a previous or existing owner. Please ask one of our staff members to check files for any relevant documentation that have come to our attention.
Photographs are reproduced for general information and it must not be inferred that any items shown are included in the sale with the property.
MONEY LAUNDERING
Under the Protection Against Money Laundering and the Proceeds of Crime Act 2002, we must point out that any successful purchasers who are proceeding with a purchase will be asked for identification i.e. passport or driving licence or recent utility bill. This evidence will be required prior to solicitors being instructed in the purchase of the sale of a property.
MORTGAGES
Barkers Estate Agents offer the services of an independent mortgage and financial adviser. Please ask an advisor for further information.
VIEWING TIMES
Viewing strictly by appointment through Barkers Estate Agents.
Hours of Business:
Monday to Friday 9am -5.30pm
Saturday 9am - 4pm

SOLAR PANELS
The house has its own solar panels located on the roofs at the front roofs of the property generating an income.

Please enquire further at the office for the income generated.

Additional Information
Tenure:
Freehold
Council Tax Band:
F

Mortgage calculator

Calculate Your Stamp Duty
£
Results
Stamp Duty To Pay:
Effective Rate:
Tax Band % Taxable Sum Tax

Hollies Way, Bushby, Leicester

Struggling to find a property? Get in touch and we'll help you find your ideal property.

Interested in viewing this property?
Book a Viewing
Main menu