4 bedroom Semi-detached house Sold STC

Dorset Avenue, Wigston

£325,000 | SSTC

4 Bedrooms
1 Bathrooms
3 Receptions

Leicester (Barkers, Queens Rd)

79 Queens Road, 
Leicester, 
LE2 1TT
Standout Features

Property Description
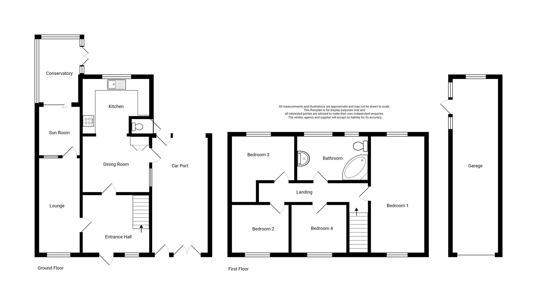
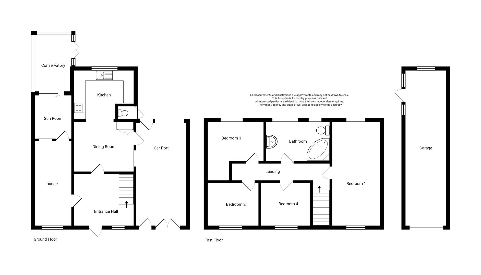
Barkers are delighted to offer for sale this spacious and EXTENDED FOUR BEDROOM semi detached family home in need of modernisation, situated on a sought after road in WIGSTON.

The accommodation briefly comprises entrance hall, lounge, sun room, conservatory and kitchen diner to the ground floor.

On the first floor there are four bedrooms and a shower room.

The property benefits from having a CARPORT and DETACHED GARAGE along with a good sized and well established rear garden. Gas central heating and double glazing.

Well located with a choice of primary and secondary schools close by and access to surrounding motorways, Fosse Park and the City Centre are only a short drive away.

Offered for sale with NO UPPER CHAIN.

HALL
Double glazed front door, staircase rising to the first floor, radiator, under stairs cupboard, frosted double glazed windows to front aspect.

LOUNGE
6.00 x 4.15 (19'8" x 13'7") - Serving hatch into dining area, two radiators, double glazed window to front aspect, double glazed window and door to rear leading into,

OTHER ASPECT

SUN ROOM
3.13 x 2.74 (10'3" x 8'11") - Radiator, tiled floor, double glazed sliding door into,

CONSERVATORY
3.36 x 3.21 (11'0" x 10'6") - Power, tiled flooring, double glazed windows to side and rear aspects, pair of double glazed doors to side aspect leading into garden.

DINING AREA
3.83 x 3.04 max (12'6" x 9'11" max) - Serving hatch into lounge, built in cupboards, corner radiator, tiled floor, double glazed window to and door to side aspect.

OPEN PLAN KITCHEN AREA
3.43 x 2.70 (11'3" x 8'10") - Fitted units with worktops, sink with double drainer, plumbing for washing machine and dishwasher, space for fridge freezer, Range gas cooker, tiled walls and floor, double glazed window to rear aspect.

LANDING
Access to Loft

BEDROOM ONE
5.93 x 3.42 (19'5" x 11'2") - Two radiators, double window to front and rear aspects.

BEDROOM TWO
3.75 x 2.98 (12'3" x 9'9") - Radiator, double glazed window to front aspect.

BEDROOM THREE
3.75 x 2.78 (12'3" x 9'1") - Built in cupboard housing 'Worcester' boiler, radiator, double glazed window to rear aspect

BEDROOM FOUR
2.97 x 2.09 (9'8" x 6'10") - Built in cupboard, radiator, double glazed window to front aspect.

SHOWER ROOM
2.98 x 1.68 (9'9" x 5'6") - Corner shower cubicle with mains shower, low level W/C, Vanity sink unit, heated towel rail, tiled walls, frosted double glazed window to rear aspect.

OUTSIDE
Lovely established good sized rear garden mainly laid to lawn with paved seating area, pond, flower borders and mature scrubs and trees, water tap.

To the front of the property is a driveway providing off-street parking, leading into a carport, and a detached garage – offering secure parking and additional storage space.

CAR PORT
5.99 x 3.47 (19'7" x 11'4") - Covered area, power, door and double doors to front aspect, gate to rear aspect.

OUTSIDE W/C
Low level W/C, tiled floor and walls.

GARAGE
9.58 x 2.69 (31'5" x 8'9") - A detached garage with electric shutter door, alarmed, power, window to rear and side aspects and door to side aspect into garden.

FREE VALUATION
Thinking of selling? We would be delighted to provide you with a free market appraisal/valuation of your own property. Please contact Barkers to arrange a mutually convenient appointment on Tel: 0116 270 9394

GENERAL REMARKS
We are unable to confirm whether certain items in the property are in fully working order (i.e. gas, electric, plumbing etc.) The property is offered for sale on this basis. Prospective purchasers are advised to inspect the property and commission expert reports where appropriate. Barkers Estate Agents have a policy of seeking to obtain any copy guarantees / invoices relating to works that may have been carried out by a previous or existing owner. Please ask one of our staff members to check files for any relevant documentation that have come to our attention.
Photographs are reproduced for general information and it must not be inferred that any items shown are included in the sale with the property.
MONEY LAUNDERING
Under the Protection Against Money Laundering and the Proceeds of Crime Act 2002, we must point out that any successful purchasers who are proceeding with a purchase will be asked for identification i.e. passport or driving licence or recent utility bill. This evidence will be required prior to solicitors being instructed in the purchase of the sale of a property.
MORTGAGES
Barkers Estate Agents offer the services of an independent mortgage and financial adviser. Please ask an advisor for further information.
VIEWING TIMES
Viewing strictly by appointment through Barkers Estate Agents.
Hours of Business:
Monday to Friday 9am -5.30pm,
Saturday 9am - 4pm,

Additional Information
Council Tax Band:
D
Rooms
HALL
Double glazed front door, staircase rising to the first floor, radiator, under stairs cupboard, frosted double glazed windows to front aspect.
LOUNGE
Serving hatch into dining area, two radiators, double glazed window to front aspect, double glazed window and door to rear leading into,
OTHER ASPECT
SUN ROOM
Radiator, tiled floor, double glazed sliding door into,
CONSERVATORY
Power, tiled flooring, double glazed windows to side and rear aspects, pair of double glazed doors to side aspect leading into garden.
DINING AREA
Serving hatch into lounge, built in cupboards, corner radiator, tiled floor, double glazed window to and door to side aspect.
OPEN PLAN KITCHEN AREA
Fitted units with worktops, sink with double drainer, plumbing for washing machine and dishwasher, space for fridge freezer, Range gas cooker, tiled walls and floor, double glazed window to rear aspect.
LANDING
Access to Loft
BEDROOM ONE
Two radiators, double window to front and rear aspects.
BEDROOM TWO
Radiator, double glazed window to front aspect.
BEDROOM THREE
Built in cupboard housing 'Worcester' boiler, radiator, double glazed window to rear aspect
BEDROOM FOUR
Built in cupboard, radiator, double glazed window to front aspect.
SHOWER ROOM
Corner shower cubicle with mains shower, low level W/C, Vanity sink unit, heated towel rail, tiled walls, frosted double glazed window to rear aspect.
OUTSIDE
Lovely established good sized rear garden mainly laid to lawn with paved seating area, pond, flower borders and mature scrubs and trees, water tap.

To the front of the property is a driveway providing off-street parking, leading into a carport, and a detached garage – offering secure parking and additional storage space.
CAR PORT
Covered area, power, door and double doors to front aspect, gate to rear aspect.
OUTSIDE W/C
Low level W/C, tiled floor and walls.
GARAGE
A detached garage with electric shutter door, alarmed, power, window to rear and side aspects and door to side aspect into garden.
FREE VALUATION
Thinking of selling? We would be delighted to provide you with a free market appraisal/valuation of your own property. Please contact Barkers to arrange a mutually convenient appointment on Tel: 0116 270 9394
GENERAL REMARKS
We are unable to confirm whether certain items in the property are in fully working order (i.e. gas, electric, plumbing etc.) The property is offered for sale on this basis. Prospective purchasers are advised to inspect the property and commission expert reports where appropriate. Barkers Estate Agents have a policy of seeking to obtain any copy guarantees / invoices relating to works that may have been carried out by a previous or existing owner. Please ask one of our staff members to check files for any relevant documentation that have come to our attention.
Photographs are reproduced for general information and it must not be inferred that any items shown are included in the sale with the property.
MONEY LAUNDERING
Under the Protection Against Money Laundering and the Proceeds of Crime Act 2002, we must point out that any successful purchasers who are proceeding with a purchase will be asked for identification i.e. passport or driving licence or recent utility bill....

Mortgage calculator

Calculate Your Stamp Duty
£
Results
Stamp Duty To Pay:
Effective Rate:
Tax Band % Taxable Sum Tax

Dorset Avenue, Wigston

Struggling to find a property? Get in touch and we'll help you find your ideal property.

Interested in viewing this property?
Book a Viewing
Main menu