4 bedroom Semi-detached house Sold STC

Cleveleys Avenue, Leicester

£300,000 | SSTC

4 Bedrooms
2 Bathrooms
3 Receptions

Leicester (Barkers, Queens Rd)

79 Queens Road, 
Leicester, 
LE2 1TT
Standout Features

Property Description
Price Guide £300,000 - £ 320,000 A RECENTLY REFURBISHED THREE/ FOUR BEDROOM semi detached property located in a popular location off Narborough Road South, situated within easy access of all local facilities and within a short drive of Fosse Park Retail Park and the M1/M69 road network.

The house offers FANTASTIC ENTERTAINING SPACE and is offered for sale WITH NO UPPER CHAIN.

Downstairs you have a THREE RECEPTION ROOMS, newly fitted kitchen/dining area, downstairs shower. Upstairs there are three bedrooms and a newly fitted bathroom.

To the rear is a good size garden and to the front of the property you have off street parking for two cars.


VIEWING IS RECOMMENDED - CALL BARKERS NOW ON 0116 2709394

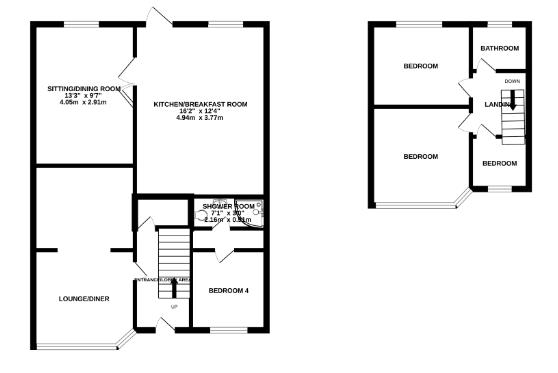
ENTRANCE HALL
Double glazed front door, radiator.

RECEPTION ONE
7.02 x 3.35 into bay (23'0" x 10'11" into bay) - Inset spotlights, two radiators, double glazed bay window to front aspect.

KITCHEN/DINER
5.15 x 4.94 (16'10" x 16'2") - Fitted units with worktops and tiled splashback, centre island feature, sink with drainer, four ring gas hob with oven and extractor, tiled floor, plumbing for W/M, space for F/F, spotlights, two radiators, double glazed window and door to rear aspect. Double glass panelled doors leading into

RECEPTION TWO
4.51 x 3.15 (14'9" x 10'4") - Radiator, inset spotlights, double glazed window to rear aspect.

RECEPTION THREE/ BEDROOM FOUR
3.77 x 2.35 (12'4" x 7'8") - Inset spotlights, radiator, double glazed window to front aspect.

SHOWER ROOM
2.73 x 1.18 (8'11" x 3'10") - Shower cubicle with mains shower, low level W/C, vanity unit, heated towel rail, tiled floor and walls,

LANDING
Access to loft, double glazed frosted window to side aspect.

BEDROOM ONE
3.80 x 3.35 into bay (12'5" x 10'11" into bay) - Carpet, radiator, inset spotlights, double glazed bay window to front elevation.

BEDROOM TWO
3.34 x 3.00 (10'11" x 9'10") - Carpet, inset spotlights, radiator, double glazed window to rear elevation.

BEDROOM THREE
2.02 x 1.84 (6'7" x 6'0") - Carpet, inset spotlights, radiator, double glazed window to front elevation.

BATHROOM
1.75 x 1.69 (5'8" x 5'6") - Bath with mixer shower attachment, low level W/C, pedestal wash hand basin, heated towel rail, tiled floor and walls.

OUTSIDE
Steps on to a decking area with stairs down to a good size rear garden laid to lawn.

To the front of the property is drive providing off road parking

FREE VALUATION
Thinking of selling? We would be delighted to provide you with a free market appraisal/valuation of your own property. Please contact Barkers to arrange a mutually convenient appointment on Tel: 0116 270 9394

GENERAL REMARKS
We are unable to confirm whether certain items in the property are in fully working order (i.e. gas, electric, plumbing etc.) The property is offered for sale on this basis. Prospective purchasers are advised to inspect the property and commission expert reports where appropriate. Barkers Estate Agents have a policy of seeking to obtain any copy guarantees / invoices relating to works that may have been carried out by a previous or existing owner. Please ask one of our staff members to check files for any relevant documentation that have come to our attention.
Photographs are reproduced for general information and it must not be inferred that any items shown are included in the sale with the property.
MONEY LAUNDERING
Under the Protection Against Money Laundering and the Proceeds of Crime Act 2002, we must point out that any successful purchasers who are proceeding with a purchase will be asked for identification i.e. passport or driving licence or recent utility bill. This evidence will be required prior to solicitors being instructed in the purchase of the sale of a property.
MORTGAGES
Barkers Estate Agents offer the services of an independent mortgage and financial adviser. Please ask an advisor for further information.
VIEWING TIMES
Viewing strictly by appointment through Barkers Estate Agents.
Hours of Business:
Monday to Friday 9am -5pm
Saturday 9am - 4pm

Rooms
ENTRANCE HALL
Double glazed front door, radiator.
RECEPTION ONE
Inset spotlights, two radiators, double glazed bay window to front aspect.
KITCHEN/DINER
Fitted units with worktops and tiled splashback, centre island feature, sink with drainer, four ring gas hob with oven and extractor, tiled floor, plumbing for W/M, space for F/F, spotlights, two radiators, double glazed window and door to rear aspect. Double glass panelled doors leading into
RECEPTION TWO
Radiator, inset spotlights, double glazed window to rear aspect.
RECEPTION THREE/ BEDROOM FOUR
Inset spotlights, radiator, double glazed window to front aspect.
SHOWER ROOM
Shower cubicle with mains shower, low level W/C, vanity unit, heated towel rail, tiled floor and walls,
LANDING
Access to loft, double glazed frosted window to side aspect.
BEDROOM ONE
Carpet, radiator, inset spotlights, double glazed bay window to front elevation.
BEDROOM TWO
Carpet, inset spotlights, radiator, double glazed window to rear elevation.
BEDROOM THREE
Carpet, inset spotlights, radiator, double glazed window to front elevation.
BATHROOM
Bath with mixer shower attachment, low level W/C, pedestal wash hand basin, heated towel rail, tiled floor and walls.
OUTSIDE
Steps on to a decking area with stairs down to a good size rear garden laid to lawn.

To the front of the property is drive providing off road parking
FREE VALUATION
Thinking of selling? We would be delighted to provide you with a free market appraisal/valuation of your own property. Please contact Barkers to arrange a mutually convenient appointment on Tel: 0116 270 9394
GENERAL REMARKS
We are unable to confirm whether certain items in the property are in fully working order (i.e. gas, electric, plumbing etc.) The property is offered for sale on this basis. Prospective purchasers are advised to inspect the property and commission expert reports where appropriate. Barkers Estate Agents have a policy of seeking to obtain any copy guarantees / invoices relating to works that may have been carried out by a previous or existing owner. Please ask one of our staff members to check files for any relevant documentation that have come to our attention.
Photographs are reproduced for general information and it must not be inferred that any items shown are included in the sale with the property.
MONEY LAUNDERING
Under the Protection Against Money Laundering and the Proceeds of Crime Act 2002, we must point out that any successful purchasers who are proceeding with a purchase will be asked for identification i.e. passport or driving licence or recent utility bill....

Mortgage calculator

Calculate Your Stamp Duty
£
Results
Stamp Duty To Pay:
Effective Rate:
Tax Band % Taxable Sum Tax

Cleveleys Avenue, Leicester

Struggling to find a property? Get in touch and we'll help you find your ideal property.

Interested in viewing this property?
Book a Viewing
Main menu