Nicholas Humphreys

4 bedroom Semi-detached house Sold STC

Breedon Avenue, Wigston

Guide Price £325,000 | SSTC

4 Bedrooms
2 Bathrooms
2 Receptions

Leicester (Barkers, Queens Rd)

79 Queens Road, 
Leicester, 
LE2 1TT
Standout Features

Property Description

Guide Price £325,000 - £350,000

An opportunity to improve an EXTENDED FOUR BEDROOM semi detached home located in a QUIET CUL DEC SAC location which has been in the same families hands since it was built in 1959.

The home sits on a WIDE PLOT.

The house briefly comprises an entrance hall, lounge, dining room, kitchen and conservatory on the ground floor.

Upstairs there are FOUR BEDROOMS en-suite shower room, and a bathroom.

The Home benefits from a LARGE CAR PORT and a GARAGE and sits on a WIDE PLOT with a lovely WELL ESTABLISHED REAR GARDEN.

Conveniently located for Wigston town centre with all its shops and amenities it provides and close proximity to several commuter roads both into and out of the city of Leicester.

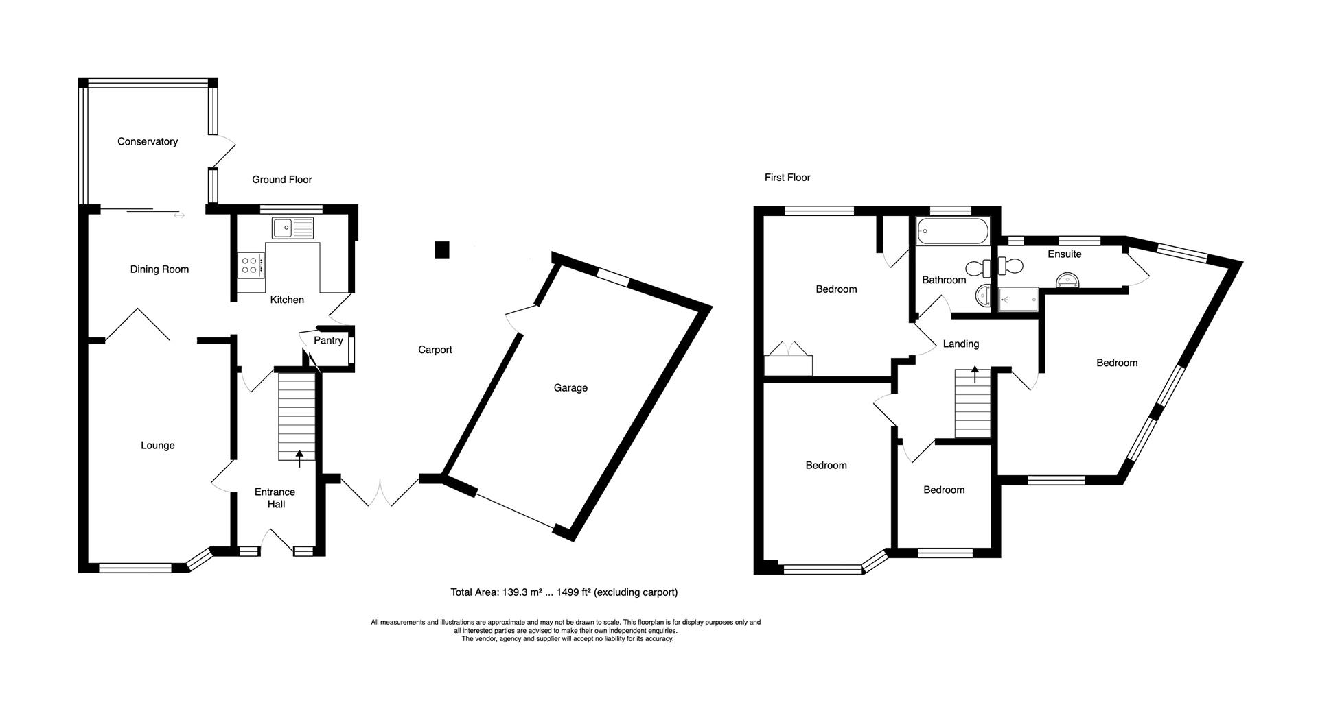
ENTRANCE HALLWAY
4.04 x 1.82 (13'3" x 5'11") - Double glazed front door, meter cupboard, radiator, staircase rising to first floor.

LOUNGE
5.13 to bay x 3.36 (16'9" to bay x 11'0") - Double glazed bay window to front aspect, gas fireplace with brick surround, radiator, folding doors leading into,

DINING ROOM
2.71 x 2.68 (8'10" x 8'9") - Radiator, double glazed sliding doors to rear aspect leading into conservatory, door into

OTHER ASPECT

CONSERVATORY
2.80 x 2.73 (9'2" x 8'11") - Radiator, power point, sliding double glazed doors to rear aspect and double glazed door to side aspect.

KITCHEN
3.96 x 2.48 (12'11" x 8'1") - Fitted units with worktops, sink with drainer, integrated fridge, electric hob with extractor, integrated double electric oven, plumbing for washing machine and space for fridge freezer, radiator, built in pantry with window to side aspect, double glazed window to rear aspect and frosted double-glazed door to side aspect leading into car port.

LANDING
Access to loft, built in cupboard.

BEDROOM ONE
5.16 max x 3.85 (16'11" max x 12'7") - Striped fllors, spot lights, two radiators, double glazed windows to side, front and rear aspects.

EN-SUITE SHOWER ROOM
2.59 x 1.86 max reducing to 0.98 (8'5" x 6'1" max - Shower cubicle with electric shower, low level W/C, vanity unit, heated towel rail, tiled walls and floor, underfloor heating, two double glazed windows to rear aspect.

BEDROOM TWO
4.28 x 3.00 (14'0" x 9'10") - Floor boards, radiator. bay window to front aspect.

BEDROOM THREE
3.78 x 3.41 (12'4" x 11'2") - Fitted wardrobe and vanity, built in cupboard housing 'Worcester' boiler, floor boards, double glazed window to rear aspect.

BEDROOM FOUR
2.40 x 2.19 (7'10" x 7'2") - Floor boards, radiator, double glazed window to front aspect.

BATHROOM
2.29 x 1.76 (7'6" x 5'9") - Bath with mains shower, low level W/C, vanity unit, heated towel rail, tiled walls and floor, spot lights, frosted double glazed window to rear aspect.

OUTSIDE
Beautiful garden on a wide plot mainly laid to lawn with well established flower borders, trees bushes and shrubs, paved seating area, shed and water tap.

To the front of the property is a block paved driveway providing off street parking with flower border and mature tree and shrubs.

CAR PORT
5.69 max x 3.92 max (18'8" max x 12'10" max) - Covered roof area, wooden doors to front aspect.

GARAGE
4.96 x 2.51 (16'3" x 8'2") - Up and over door, window to rear aspect, door to side aspect.

FREE VALUATION
Thinking of selling? We would be delighted to provide you with a free market appraisal/valuation of your own property. Please contact Barkers to arrange a mutually convenient appointment on Tel: 0116 270 9394

GENERAL REMARKS
We are unable to confirm whether certain items in the property are in fully working order (i.e. gas, electric, plumbing etc.) The property is offered for sale on this basis. Prospective purchasers are advised to inspect the property and commission expert reports where appropriate. Barkers Estate Agents have a policy of seeking to obtain any copy guarantees / invoices relating to works that may have been carried out by a previous or existing owner. Please ask one of our staff members to check files for any relevant documentation that have come to our attention.
Photographs are reproduced for general information and it must not be inferred that any items shown are included in the sale with the property.
MONEY LAUNDERING
Under the Protection Against Money Laundering and the Proceeds of Crime Act 2002, we must point out that any successful purchasers who are proceeding with a purchase will be asked for identification i.e. passport or driving licence or recent utility bill. This evidence will be required prior to solicitors being instructed in the purchase of the sale of a property.
MORTGAGES
Barkers Estate Agents offer the services of an independent mortgage and financial adviser. Please ask an advisor for further information.
VIEWING TIMES
Viewing strictly by appointment through Barkers Estate Agents.
Hours of Business:
Monday to Friday 9am -5.30pm,
Saturday 9am - 4pm,

AML DISCLAIMER
In accordance with current Anti-Money Laundering and Proceeds of Crime Legislation, all buyers are required to complete identity and verification checks.
These checks are carried out on our behalf of Moverly, our approved AML provider.
A £50 fee (incl. vat) covers required data and any manual checks.
This must be paid before we can issue a memorandum of sale.
The fee is non-refundable and paid directly to Moverly. We receive a portion of this fee for facilitating the checks

Additional Information
Tenure:
Freehold
Council Tax Band:
C
Rooms
ENTRANCE HALLWAY

Double glazed front door, meter cupboard, radiator, staircase rising to first floor.

LOUNGE

Double glazed bay window to front aspect, gas fireplace with brick surround, radiator, folding doors leading into,

DINING ROOM

Radiator, double glazed sliding doors to rear aspect leading into conservatory, door into

OTHER ASPECT
CONSERVATORY

Radiator, power point, sliding double glazed doors to rear aspect and double glazed door to side aspect.

KITCHEN

Fitted units with worktops, sink with drainer, integrated fridge, electric hob with extractor, integrated double electric oven, plumbing for washing machine and space for fridge freezer, radiator, built in pantry with window to side aspect, double glazed window to rear aspect and frosted double-glazed door to side aspect leading into car port.

LANDING

Access to loft, built in cupboard.

BEDROOM ONE

Striped fllors, spot lights, two radiators, double glazed windows to side, front and rear aspects.

EN-SUITE SHOWER ROOM

Shower cubicle with electric shower, low level W/C, vanity unit, heated towel rail, tiled walls and floor, underfloor heating, two double glazed windows to rear aspect.

BEDROOM TWO

Floor boards, radiator. bay window to front aspect.

BEDROOM THREE

Fitted wardrobe and vanity, built in cupboard housing 'Worcester' boiler, floor boards, double glazed window to rear aspect.

BEDROOM FOUR

Floor boards, radiator, double glazed window to front aspect.

BATHROOM

Bath with mains shower, low level W/C, vanity unit, heated towel rail, tiled walls and floor, spot lights, frosted double glazed window to rear aspect.

OUTSIDE

Beautiful garden on a wide plot mainly laid to lawn with well established flower borders, trees bushes and shrubs, paved seating area, shed and water tap.

To the front of the property is a block paved driveway providing off street parking with flower border and mature tree and shrubs.

CAR PORT

Covered roof area, wooden doors to front aspect.

GARAGE

Up and over door, window to rear aspect, door to side aspect.

FREE VALUATION

Thinking of selling? We would be delighted to provide you with a free market appraisal/valuation of your own property. Please contact Barkers to arrange a mutually convenient appointment on Tel: 0116 270 9394

GENERAL REMARKS

We are unable to confirm whether certain items in the property are in fully working order (i.e. gas, electric, plumbing etc.) The property is offered for sale on this basis. Prospective purchasers are advised to inspect the property and commission expert reports where appropriate. Barkers Estate Agents have a policy of seeking to obtain any copy guarantees / invoices relating to works that may have been carried out by a previous or existing owner. Please ask one of our staff members to check files for any relevant documentation that have come to our attention.
Photographs are reproduced for general information and it must not be inferred that any items shown are included in the sale with the property.
MONEY LAUNDERING
Under the Protection Against Money Laundering and the Proceeds of Crime Act 2002, we must point out that any successful purchasers who are proceeding with a purchase will be asked for identification i.e. passport or driving licence or recent utility bill....

AML DISCLAIMER

In accordance with current Anti-Money Laundering and Proceeds of Crime Legislation, all buyers are required to complete identity and verification checks.
These checks are carried out on our behalf of Moverly, our approved AML provider.
A £50 fee (incl. vat) covers required data and any manual checks.
This must be paid before we can issue a memorandum of sale.
The fee is non-refundable and paid directly to Moverly. We receive a portion of this fee for facilitating the checks


Mortgage calculator

Calculate Your Stamp Duty
£
Results
Stamp Duty To Pay:
Effective Rate:
Tax Band % Taxable Sum Tax

Breedon Avenue, Wigston

Struggling to find a property? Get in touch and we'll help you find your ideal property.

Interested in viewing this property?
Book a Viewing
Main menu