3 bedroom Terraced House Sold STC

Lorne Road, Leicester

Offers over £260,000 | SSTC

3 Bedrooms
1 Bathrooms
2 Receptions

Leicester (Barkers, Queens Rd)

79 Queens Road, 
Leicester, 
LE2 1TT
Standout Features

Property Description
A great opportunity to purchase this spacious THREE BEDROOM terraced house in CLARENDON PARK.

The property is offered for sale with NO CHAIN and briefly comprises an entrance hallway, two separate reception room, dining kitchen on the ground floor. On the first floor there are three bedroom and a shower room.

Outside is a courtyard garden and retaining the original three outbuildings.

Lorne Road is walking distance to Queens Road with its popular bars, restaurants and coffee shops, not to mention Victoria Park, Leicester Railway station and the Hospitals and Universities.

VIEWING IS RECOMMENDED - CALL BARKERS NOW ON 0116 2709394

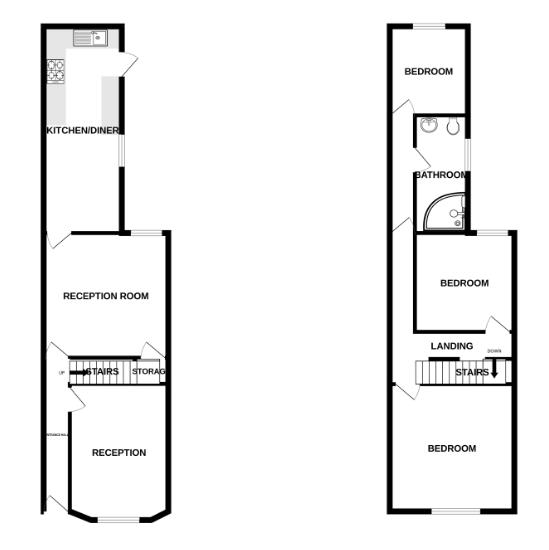
ENTRANCE HALL
Front door, Coving, radiator, staircase rising to first floor.

RECEPTION ONE
4.13 to bay x 2.92 (13'6" to bay x 9'6") - Meter cupboard, coving, radiator, double glazed bay window to front aspect.

RECEPTION TWO
3.86 x 3.62 (12'7" x 11'10") - Under stairs cupboard, radiator, double glazed window to rear aspect, sliding door leading into,

DINING KITCHEN
5.67 x 2.31 (18'7" x 7'6") - Fitted units with work tops and tiled splash backs, electric hob and oven, sink with drainer, plumbing for washing machine, 'Worcester' boiler, double glazed window to side and rear aspects, double glazed frosted door to side elevation leading into garden.

LANDING
Access to loft.

BEDROOM ONE
4.33 x 3.64 (14'2" x 11'11") - Radiator, double glazed window to front aspect.

BEDROOM TWO
3.44 max x 2.83 (11'3" max x 9'3") - Radiator, double glazed window to rear aspect.

BEDROOM THREE
3.60 x 2.33 (11'9" x 7'7") - Fitted wardrobe, radiator, double glazed window to rear aspect.

SHOWER ROOM
1.96 x 1.41 (6'5" x 4'7") - Shower cubicle with mains shower, low level W/C, pedestal wash hand basin, radiator, tiled floor and walls, double glazed frosted window to side aspect.

OUTSIDE
A courtyard garden with the three original outbuildings, water tap, raised brick flower borders, side gate.

FREE VALUATION
Thinking of selling? We would be delighted to provide you with a free market appraisal/valuation of your own property. Please contact Barkers to arrange a mutually convenient appointment on Tel: 0116 270 9394

GENERAL REMARKS
We are unable to confirm whether certain items in the property are in fully working order (i.e. gas, electric, plumbing etc.) The property is offered for sale on this basis. Prospective purchasers are advised to inspect the property and commission expert reports where appropriate. Barkers Estate Agents have a policy of seeking to obtain any copy guarantees / invoices relating to works that may have been carried out by a previous or existing owner. Please ask one of our staff members to check files for any relevant documentation that have come to our attention.
Photographs are reproduced for general information and it must not be inferred that any items shown are included in the sale with the property.
MONEY LAUNDERING
Under the Protection Against Money Laundering and the Proceeds of Crime Act 2002, we must point out that any successful purchasers who are proceeding with a purchase will be asked for identification i.e. passport or driving licence or recent utility bill. This evidence will be required prior to solicitors being instructed in the purchase of the sale of a property.
MORTGAGES
Barkers Estate Agents offer the services of an independent mortgage and financial adviser. Please ask an advisor for further information.
VIEWING TIMES
Viewing strictly by appointment through Barkers Estate Agents.
Hours of Business:
Monday to Friday 9am -5pm
Saturday 9am - 4pm

Additional Information
Council Tax Band:
B
Rooms
ENTRANCE HALL
Front door, Coving, radiator, staircase rising to first floor.
RECEPTION ONE
Meter cupboard, coving, radiator, double glazed bay window to front aspect.
RECEPTION TWO
Under stairs cupboard, radiator, double glazed window to rear aspect, sliding door leading into,
DINING KITCHEN
Fitted units with work tops and tiled splash backs, electric hob and oven, sink with drainer, plumbing for washing machine, 'Worcester' boiler, double glazed window to side and rear aspects, double glazed frosted door to side elevation leading into garden.
LANDING
Access to loft.
BEDROOM ONE
Radiator, double glazed window to front aspect.
BEDROOM TWO
Radiator, double glazed window to rear aspect.
BEDROOM THREE
Fitted wardrobe, radiator, double glazed window to rear aspect.
SHOWER ROOM
Shower cubicle with mains shower, low level W/C, pedestal wash hand basin, radiator, tiled floor and walls, double glazed frosted window to side aspect.
OUTSIDE
A courtyard garden with the three original outbuildings, water tap, raised brick flower borders, side gate.
FREE VALUATION
Thinking of selling? We would be delighted to provide you with a free market appraisal/valuation of your own property. Please contact Barkers to arrange a mutually convenient appointment on Tel: 0116 270 9394
GENERAL REMARKS
We are unable to confirm whether certain items in the property are in fully working order (i.e. gas, electric, plumbing etc.) The property is offered for sale on this basis. Prospective purchasers are advised to inspect the property and commission expert reports where appropriate. Barkers Estate Agents have a policy of seeking to obtain any copy guarantees / invoices relating to works that may have been carried out by a previous or existing owner. Please ask one of our staff members to check files for any relevant documentation that have come to our attention.
Photographs are reproduced for general information and it must not be inferred that any items shown are included in the sale with the property.
MONEY LAUNDERING
Under the Protection Against Money Laundering and the Proceeds of Crime Act 2002, we must point out that any successful purchasers who are proceeding with a purchase will be asked for identification i.e. passport or driving licence or recent utility bill....

Mortgage calculator

Calculate Your Stamp Duty
£
Results
Stamp Duty To Pay:
Effective Rate:
Tax Band % Taxable Sum Tax

Lorne Road, Leicester

Struggling to find a property? Get in touch and we'll help you find your ideal property.

Interested in viewing this property?
Book a Viewing
Main menu