3 bedroom Terraced House Sold STC

Chepstow Road, Leicester

£230,000 | SSTC

3 Bedrooms
2 Bathrooms
1 Receptions

Leicester (Barkers, Queens Rd)

79 Queens Road, 
Leicester, 
LE2 1TT
Standout Features

Property Description
Guide Price £230,000 - £240,000 A SPACIOUS THREE BEDROOM mid terraced property located off Evington Road

The property has been extended downstairs offering a breakfast kitchen and a downstairs shower room.

Upstairs are three bedrooms and a family bathroom

The house is offered CHAIN FREE.

This property is in close proximity to places of worship, schools, bus routes and many local amenities.

VIEWING IS RECOMMENDED - CALL BARKERS NOW ON 0116 2709394

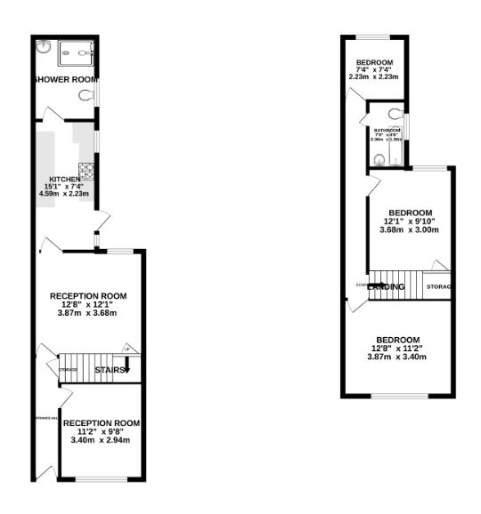
ENTRANCE HALL
Double glazed front door, radiator, built in under stairs cupboard housing alarm box, fuse box and electric meter.

LOUNGE
3.42 x 2.78 (11'2" x 9'1") - Fireplace surround, cupboard housing gas meter, radiator, coving, picture rail, double glazed window to front aspect.

DINING ROOM
3.72 x 3.71 (12'2" x 12'2") - Electric fireplace, picture rail, radiator, double glazed window to rear aspect.

BREAKFAST KITCHEN
4.87 x 2.43 (15'11" x 7'11") - Fitted units with worktops and tiled splash backs, built in four ring gas hob with oven below and extractor above, 'Vaillant' boiler, sink with drainer, plumbing for W/M, radiator, two double glazed windows and door to side leading out to rear garden.

SHOWER ROOM
2.17 x 2.15 (7'1" x 7'0") - Wash hand basin, low level W/C, electric shower, radiator, double glazed frosted window to side aspect.

LANDING
Access to loft, radiator.

BEDROOM ONE
4.20 x 3.41 (13'9" x 11'2") - Fireplace, radiator, double glazed window to front elevation.

BEDROOM TWO
3.70 x 3.31 (12'1" x 10'10") - Fireplace, radiator, built in cupboard, double glazed window to elevation.

BEDROOM THREE
2.44 x 2.38 (8'0" x 7'9") - Radiator, double glazed window to rear aspect.

BATHROOM
2.36 x 1.53 (7'8" x 5'0") - Sliding door, bath , low level W/C, pedestal wash hand basin, radiator, part tiled walls, frosted double glazed window to side aspect.

OUTSIDE
Shed, water tap, patio area, gate to side leading to front of house.

FREE VALUATION
Thinking of selling? We would be delighted to provide you with a free market appraisal/valuation of your own property. Please contact Barkers to arrange a mutually convenient appointment on Tel: 0116 270 9394

GENERAL REMARKS
We are unable to confirm whether certain items in the property are in fully working order (i.e. gas, electric, plumbing etc.) The property is offered for sale on this basis. Prospective purchasers are advised to inspect the property and commission expert reports where appropriate. Barkers Estate Agents have a policy of seeking to obtain any copy guarantees / invoices relating to works that may have been carried out by a previous or existing owner. Please ask one of our staff members to check files for any relevant documentation that have come to our attention.
Photographs are reproduced for general information and it must not be inferred that any items shown are included in the sale with the property.
MONEY LAUNDERING
Under the Protection Against Money Laundering and the Proceeds of Crime Act 2002, we must point out that any successful purchasers who are proceeding with a purchase will be asked for identification i.e. passport or driving licence or recent utility bill. This evidence will be required prior to solicitors being instructed in the purchase of the sale of a property.
MORTGAGES
Barkers Estate Agents offer the services of an independent mortgage and financial adviser. Please ask an advisor for further information.
VIEWING TIMES
Viewing strictly by appointment through Barkers Estate Agents.
Hours of Business:
Monday to Friday 9am -5pm
Saturday 9am - 4pm

Additional Information
Council Tax Band:
A
Rooms
ENTRANCE HALL
Double glazed front door, radiator, built in under stairs cupboard housing alarm box, fuse box and electric meter.
LOUNGE
Fireplace surround, cupboard housing gas meter, radiator, coving, picture rail, double glazed window to front aspect.
DINING ROOM
Electric fireplace, picture rail, radiator, double glazed window to rear aspect.
BREAKFAST KITCHEN
Fitted units with worktops and tiled splash backs, built in four ring gas hob with oven below and extractor above, 'Vaillant' boiler, sink with drainer, plumbing for W/M, radiator, two double glazed windows and door to side leading out to rear garden.
SHOWER ROOM
Wash hand basin, low level W/C, electric shower, radiator, double glazed frosted window to side aspect.
LANDING
Access to loft, radiator.
BEDROOM ONE
Fireplace, radiator, double glazed window to front elevation.
BEDROOM TWO
Fireplace, radiator, built in cupboard, double glazed window to elevation.
BEDROOM THREE
Radiator, double glazed window to rear aspect.
BATHROOM
Sliding door, bath , low level W/C, pedestal wash hand basin, radiator, part tiled walls, frosted double glazed window to side aspect.
OUTSIDE
Shed, water tap, patio area, gate to side leading to front of house.
FREE VALUATION
Thinking of selling? We would be delighted to provide you with a free market appraisal/valuation of your own property. Please contact Barkers to arrange a mutually convenient appointment on Tel: 0116 270 9394
GENERAL REMARKS
We are unable to confirm whether certain items in the property are in fully working order (i.e. gas, electric, plumbing etc.) The property is offered for sale on this basis. Prospective purchasers are advised to inspect the property and commission expert reports where appropriate. Barkers Estate Agents have a policy of seeking to obtain any copy guarantees / invoices relating to works that may have been carried out by a previous or existing owner. Please ask one of our staff members to check files for any relevant documentation that have come to our attention.
Photographs are reproduced for general information and it must not be inferred that any items shown are included in the sale with the property.
MONEY LAUNDERING
Under the Protection Against Money Laundering and the Proceeds of Crime Act 2002, we must point out that any successful purchasers who are proceeding with a purchase will be asked for identification i.e. passport or driving licence or recent utility bill....

Mortgage calculator

Calculate Your Stamp Duty
£
Results
Stamp Duty To Pay:
Effective Rate:
Tax Band % Taxable Sum Tax

Chepstow Road, Leicester

Struggling to find a property? Get in touch and we'll help you find your ideal property.

Interested in viewing this property?
Book a Viewing
Main menu