2 bedroom Terraced House Sold STC

Woods Lane, Burton-On-Trent

£165,000 | SSTC

2 Bedrooms
1 Bathrooms
1 Receptions

Burton Upon Trent

183 High Street, 
Abbey Arcade, 
Burton upon Trent, 
DE14 1HN
Standout Features

Property Description
** Traditional Mid Terrace ** Ideal First Purchase ** Two Double Bedrooms **

A well presented terraced house offering two double bedrooms, open plan lounge diner, modern kitchen & ground floor bathroom.

The property benefits from gas central heating and UPVC double glazing with a front walled fore garden with shared side gated access to the low maintenance garden with summer house and decking.

View by appointment only.

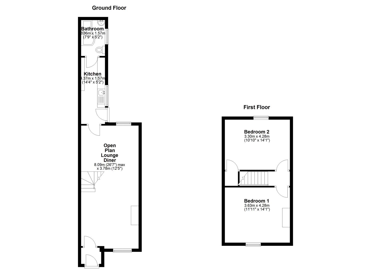
The Accommodation

Entrance Hall
With secure door and internal door to the open plan lounge diner.

Lounge Diner
8.10m max x 3.78m (26'7 max x 12'5) - With UPVC double glazed windows to the front and rear aspects, radiators, open plan central stairs to the first floor and internal door to the kitchen.

Kitchen
4.37m x 1.57m (14'4 x 5'2) - A fitted matching range of wall and base mounted units with work surface incorporating sink with mixer tap and drainer, space for a fridge freezer and plumbing for a washing machine. Concealed wall mounted boiler supplying the hot water and heating system, and internal door to the bathroom.

Ground Floor Bathroom
2.36m x 1.57m (7'9 x 5'2) - With UPVC double glazed window to the side elevation with a three piece white bathroom suite offering panelled Jacuzzi bath, wash hand basin with cabinet and WC.

First Floor

Bedroom One
4.29m x 3.63m (14'1 x 11'11) - With UPVC double glazed window to the front and radiator.

Bedroom Two
4.29m x 3.30m (14'1 x 10'10) - With UPVC double glazed window to the rear, radiator and useful built-in storage cupboard.

Outside
To the front there is a walled forecourt garden with artificial turf and there is shared gated access to an entry shared with a neighbour. To the rear there is a generous sized and enclosed garden with a yard leading to a new decked area and artificial turf and a summer house.


Property construction: Traditional Construction
Parking: none
Electricity supply: Mains
Water supply: Mains
Sewerage: Mains
Heating: Mains Gas
Council Tax Band: A
Broadband type: ADSL - See Ofcom link for speed: https://checker.ofcom.org.uk/ Mobile signal/coverage: See Ofcom link https://checker.ofcom.org.uk/
Local Authority: East Staffordshire Borough Council
Useful Websites: www.gov.uk/government/organisations/environment-agency
The property information provided by Nicholas Humphrey Estate Agents is based on enquiries made of the vendor and from information available in the public domain. If there is any point on which you require further clarification, please contact the office and we will be pleased to check the information for you. Please note if your enquiry is of a legal or structural nature, we advise you to seek advice from a qualified professional in their relevant field.

Draft details awaiting vendor approval and subject to change

Additional Information
Council Tax Band:
A
Rooms
The Accommodation
Entrance Hall
With secure door and internal door to the open plan lounge diner.
Lounge Diner
With UPVC double glazed windows to the front and rear aspects, radiators, open plan central stairs to the first floor and internal door to the kitchen.
Kitchen
A fitted matching range of wall and base mounted units with work surface incorporating sink with mixer tap and drainer, space for a fridge freezer and plumbing for a washing machine. Concealed wall mounted boiler supplying the hot water and heating system, and internal door to the bathroom.
Ground Floor Bathroom
With UPVC double glazed window to the side elevation with a three piece white bathroom suite offering panelled Jacuzzi bath, wash hand basin with cabinet and WC.
First Floor
Bedroom One
With UPVC double glazed window to the front and radiator.
Bedroom Two
With UPVC double glazed window to the rear, radiator and useful built-in storage cupboard.
Outside
To the front there is a walled forecourt garden with artificial turf and there is shared gated access to an entry shared with a neighbour. To the rear there is a generous sized and enclosed garden with a yard leading to a new decked area and artificial turf and a summer house.

Mortgage calculator

Calculate Your Stamp Duty
£
Results
Stamp Duty To Pay:
Effective Rate:
Tax Band % Taxable Sum Tax

Woods Lane, Burton-On-Trent

Struggling to find a property? Get in touch and we'll help you find your ideal property.

Interested in viewing this property?
Book a Viewing
Main menu