2 bedroom Terraced House For Sale

Montague Road, Clarendon Park, Leicester

£220,000 | Available

2 Bedrooms

Leicester (Barkers, Queens Rd)

79 Queens Road, 
Leicester, 
LE2 1TT
Standout Features

Property Description
Barkers are delighted to offer for sale this MID TERRACED property with TWO DOUBLE BEDROOMS in CLARENDON PARK.

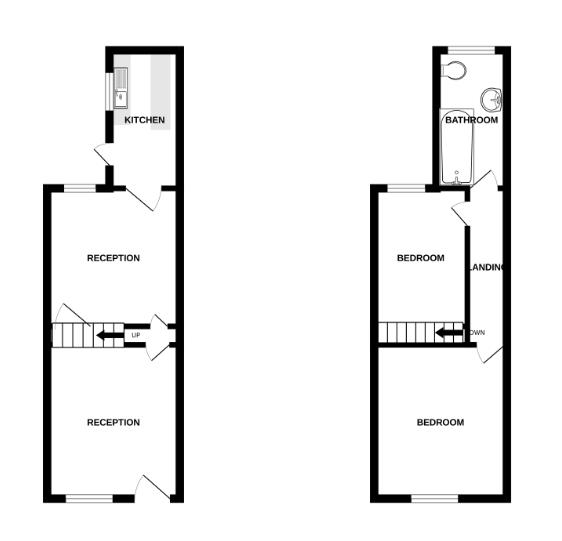
The house comprises of TWO RECEPTION ROOMS and a kitchen downstairs, on the first floor there are two bedrooms and a bathroom.

To the rear is a nicely sized garden mainly laid to lawn with mature flowers and shrubs.

Located just off Queens Road with its array of boutique shops, coffee houses, and restaurants you are perfectly situated for Leicester City Centre and train Station, Leicester general hospital and DE Montford University.

RECEPTION ONE
3.34 x 3.37 (10'11" x 11'0") - Front door, coving, meter cupboard, radiator, double glazed window to front aspect.

RECEPTION TWO
3.37 x 3.35 (11'0" x 10'11") - Built in cupboard, radiator, double glazed window to rear aspect, door into,

KITCHEN
2.55 x 1.73 (8'4" x 5'8") - Fitted units with worktops, sink with drainer, plumbing for washing machine, freestanding electric cooker, boiler, double glazed window to side aspect and door to side aspect.

LANDING
Access to loft.

BEDROOM ONE
3.37 x 3.83 (11'0" x 12'6") - Built in cupboard, radiator, double glazed windows to front aspect.

BEDROOM TWO
3.32 x 2.87 (10'10" x 9'4") - Built in cupboard, radiator, double glazed window to rear aspect.

BATHROOM
2.56 x 1.72 (8'4" x 5'7") - Bath, pedestal wash hand basin, low level W/C, radiator, part tiled wall, double glazed frosted window to rear aspect.

OUTSIDE
Mainly laid to lawn with mature plants and scrubs, paved area, gate to side.

FREE VALUATION
Thinking of selling? We would be delighted to provide you with a free market appraisal/valuation of your own property. Please contact Barkers to arrange a mutually convenient appointment on Tel: 0116 270 9394

GENERAL REMARKS
We are unable to confirm whether certain items in the property are in fully working order (i.e. gas, electric, plumbing etc.) The property is offered for sale on this basis. Prospective purchasers are advised to inspect the property and commission expert reports where appropriate. Barkers Estate Agents have a policy of seeking to obtain any copy guarantees / invoices relating to works that may have been carried out by a previous or existing owner. Please ask one of our staff members to check files for any relevant documentation that have come to our attention.
Photographs are reproduced for general information and it must not be inferred that any items shown are included in the sale with the property.
MONEY LAUNDERING
Under the Protection Against Money Laundering and the Proceeds of Crime Act 2002, we must point out that any successful purchasers who are proceeding with a purchase will be asked for identification i.e. passport or driving licence or recent utility bill. This evidence will be required prior to solicitors being instructed in the purchase of the sale of a property.
MORTGAGES
Barkers Estate Agents offer the services of an independent mortgage and financial adviser. Please ask an advisor for further information.
VIEWING TIMES
Viewing strictly by appointment through Barkers Estate Agents.
Hours of Business:
Monday to Friday 9am -5pm
Saturday 9am - 4pm

Additional Information
Council Tax Band:
A
Rooms
RECEPTION ONE
Front door, coving, meter cupboard, radiator, double glazed window to front aspect.
RECEPTION TWO
Built in cupboard, radiator, double glazed window to rear aspect, door into,
KITCHEN
Fitted units with worktops, sink with drainer, plumbing for washing machine, freestanding electric cooker, boiler, double glazed window to side aspect and door to side aspect.
LANDING
Access to loft.
BEDROOM ONE
Built in cupboard, radiator, double glazed windows to front aspect.
BEDROOM TWO
Built in cupboard, radiator, double glazed window to rear aspect.
BATHROOM
Bath, pedestal wash hand basin, low level W/C, radiator, part tiled wall, double glazed frosted window to rear aspect.
OUTSIDE
Mainly laid to lawn with mature plants and scrubs, paved area, gate to side.
FREE VALUATION
Thinking of selling? We would be delighted to provide you with a free market appraisal/valuation of your own property. Please contact Barkers to arrange a mutually convenient appointment on Tel: 0116 270 9394
GENERAL REMARKS
We are unable to confirm whether certain items in the property are in fully working order (i.e. gas, electric, plumbing etc.) The property is offered for sale on this basis. Prospective purchasers are advised to inspect the property and commission expert reports where appropriate. Barkers Estate Agents have a policy of seeking to obtain any copy guarantees / invoices relating to works that may have been carried out by a previous or existing owner. Please ask one of our staff members to check files for any relevant documentation that have come to our attention.
Photographs are reproduced for general information and it must not be inferred that any items shown are included in the sale with the property.
MONEY LAUNDERING
Under the Protection Against Money Laundering and the Proceeds of Crime Act 2002, we must point out that any successful purchasers who are proceeding with a purchase will be asked for identification i.e. passport or driving licence or recent utility bill....

Mortgage calculator

Calculate Your Stamp Duty
£
Results
Stamp Duty To Pay:
Effective Rate:
Tax Band % Taxable Sum Tax

Montague Road, Clarendon Park, Leicester

Struggling to find a property? Get in touch and we'll help you find your ideal property.

Interested in viewing this property?
Book a Viewing
Main menu