2 bedroom Terraced House Sold STC

Lindfield Road, Broxtowe, NG8

Guide Price £135,000 | SSTC

2 Bedrooms
1 Bathrooms
1 Receptions

Nottingham

6 Lenton Boulevard, 
Lenton, 
Nottingham, 
NG7 2ES
Standout Features

Property Description

Nicholas Humphreys Nottingham bring this 2 double bedroom, terraced property to the market for sale. The property is well situated within the popular and convenient area of Broxtowe.

There are a number of excellent transport links nearby, including Phoenix Park Tram Stop and several bus stops which connect the property with other, local surrounding areas. The M1 Motorway (Junction 26) is also easily accessible, providing access to both the north and south of the country.

Nicholas Humphreys Nottingham bring this 2 double bedroom, terraced property to the market for sale. The property is well situated within the popular and convenient area of Broxtowe.

There are a number of excellent transport links nearby, including Phoenix Park Tram Stop and several bus stops which connect the property with other, local surrounding areas. The M1 Motorway (Junction 26) is also easily accessible, providing access to both the north and south of the country.

There are a number of local primary schools within the area, including Horsendale, Rosslyn Park and Brocklewood, along with a local supermarket and Leisure Centre. 

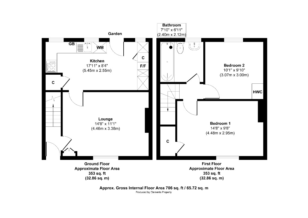
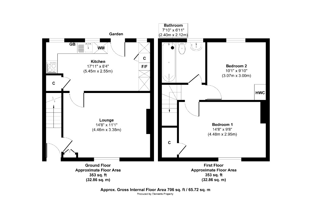
Internally, the property consists of a Lounge, Kitchen, 2 bedrooms and bathroom. To the front there is a generous driveway, providing parking for one vehicle, and to the rear, a good sized family garden. 

Lounge 4.46m x 3.38m

Kitchen 5.45m x 2.55m

Bedroom one 4.48m x 2.95m (Front)

Bedroom two 3.07m x 3.00m (Rear)

Bathroom 2.12m x 2.40m

Externally the property has a good size rear family garden and driveway parking to the front.

If you would like to arrange a viewing, please contact our team who will be happy and willing to assist.

REFERRAL ARRANGEMENT NOTE

Nicholas Humphreys Estate Agents will sometimes refer sellers (and will offer to refer buyers) to Altium Law & Simply Conveyancing for conveyancing services. It is your decision as to whether or not you choose to deal with these conveyancers. Should you decide to use the conveyancers named above, you should know that Nicholas Humphreys Estate Agents would receive a referral fee of up to £240 including VAT from them, for recommending you to them.

Nicholas Humphreys Estate Agents will sometimes refer buyers to East Cheshire Mortgages and The Mortgage Advisor for mortgage services. . It is your decision as to whether or not you choose to deal with these mortgage brokers. Should you decide to use the conveyancers named above, you should know that Nicholas Humphreys Estate Agents would receive a referral fee of £250 from them, for recommending you to them.

Nicholas Humphreys Estate Agents will sometimes refer buyers to Countrywide Surveyors. It is your decision as to whether or not you choose to deal with this company. Should you decide to use the surveyor named above, you should know that Nicholas Humphreys Estate Agents would receive a referral fee of £100 from them, for recommending you to them.

EPC rating: D. Council tax band: A, Tenure: Freehold,
Additional Information
Tenure:
Freehold
Council Tax Band:
A

Mortgage calculator

Calculate Your Stamp Duty
£
Results
Stamp Duty To Pay:
Effective Rate:
Tax Band % Taxable Sum Tax

Lindfield Road, Broxtowe, NG8

Struggling to find a property? Get in touch and we'll help you find your ideal property.

Interested in viewing this property?
Book a Viewing
Main menu