2 bedroom Terraced House For Sale

Gaul Street, Leicester

Guide Price £170,000 | Available

2 Bedrooms
1 Bathrooms
2 Receptions

Leicester (Barkers, Queens Rd)

79 Queens Road, 
Leicester, 
LE2 1TT
Standout Features

Property Description
Guide Price £170,000 - £180,000

INVESTMENT or FIRST TIME BUYER.

Two bedroom, Two Reception Room mid Terraced property located in the WEST END.

Currently rented out through us until 30th June 2026 achieving £1050 per calendar month.

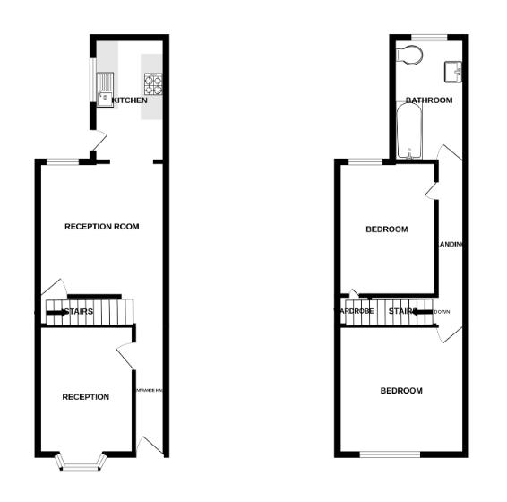
The property comprises of an entrance hallway, two reception rooms and a kitchen to the ground floor, upstairs are two bedrooms and a bathroom.

Well situated being close to Narborough Road with its choice of restaurants and coffee shops, and covenant for Leicester City Centre, Royal Infirmary, and De Montfort University.

ENTRANCE HALLWAY
Double glazed front door.

RECEPTION ONE
4.26 to bay x 2.41 (13'11" to bay x 7'10") - Fitted wardrobe, radiator, double glazed bay window to front aspect.

RECEPTION TWO
3.76 x 3.38 (12'4" x 11'1") - Radiator, double glazed window to rear aspect.

KITCHEN
3.22 x 1.78 (10'6" x 5'10") - Fitted units with worktops, sink with drainer, electric hob with oven and extractor, plumbing for washing machine, space for fridge freezer, tiled floor, double glazed window and door to side aspect.

LANDING

BEDROOM ONE
3.63 x 3.41 (11'10" x 11'2") - Stripped floor boards, radiator, double glazed window to front aspect.

BEDROOM TWO
3.66 x 2.50 (12'0" x 8'2") - Built in cupboard with access to loft, radiator, double glazed window to rear aspect.

BATHROOM
3.33 x 1.82 (10'11" x 5'11") - Bath with electric shower, low level W/C, pedestal wash hand basin, built in cupboard housing boiler, part tiled walls, radiator, frosted double glazed window to rear aspect.

OUTSIDE
Slabbed courtyard garden, three original outbuildings, gate to rear.

To the front of the house is a low level brick wall with slabbed area.

FREE VALUATION
Thinking of selling? We would be delighted to provide you with a free market appraisal/valuation of your own property. Please contact Barkers to arrange a mutually convenient appointment on Tel: 0116 270 9394

GENERAL REMARKS
We are unable to confirm whether certain items in the property are in fully working order (i.e. gas, electric, plumbing etc.) The property is offered for sale on this basis. Prospective purchasers are advised to inspect the property and commission expert reports where appropriate. Barkers Estate Agents have a policy of seeking to obtain any copy guarantees / invoices relating to works that may have been carried out by a previous or existing owner. Please ask one of our staff members to check files for any relevant documentation that have come to our attention.
Photographs are reproduced for general information and it must not be inferred that any items shown are included in the sale with the property.
MONEY LAUNDERING
Under the Protection Against Money Laundering and the Proceeds of Crime Act 2002, we must point out that any successful purchasers who are proceeding with a purchase will be asked for identification i.e. passport or driving licence or recent utility bill. This evidence will be required prior to solicitors being instructed in the purchase of the sale of a property.
MORTGAGES
Barkers Estate Agents offer the services of an independent mortgage and financial adviser. Please ask an advisor for further information.
VIEWING TIMES
Viewing strictly by appointment through Barkers Estate Agents.
Hours of Business:
Monday to Friday 9am -5.30pm,
Saturday 9am - 4pm,

DISCLAIMER
Some of the photographs on the brochure were taken before the current tenants moved in.

Additional Information
Council Tax Band:
A
Rooms
ENTRANCE HALLWAY
Double glazed front door.
RECEPTION ONE
Fitted wardrobe, radiator, double glazed bay window to front aspect.
RECEPTION TWO
Radiator, double glazed window to rear aspect.
KITCHEN
Fitted units with worktops, sink with drainer, electric hob with oven and extractor, plumbing for washing machine, space for fridge freezer, tiled floor, double glazed window and door to side aspect.
LANDING
BEDROOM ONE
Stripped floor boards, radiator, double glazed window to front aspect.
BEDROOM TWO
Built in cupboard with access to loft, radiator, double glazed window to rear aspect.
BATHROOM
Bath with electric shower, low level W/C, pedestal wash hand basin, built in cupboard housing boiler, part tiled walls, radiator, frosted double glazed window to rear aspect.
OUTSIDE
Slabbed courtyard garden, three original outbuildings, gate to rear.

To the front of the house is a low level brick wall with slabbed area.
FREE VALUATION
Thinking of selling? We would be delighted to provide you with a free market appraisal/valuation of your own property. Please contact Barkers to arrange a mutually convenient appointment on Tel: 0116 270 9394
GENERAL REMARKS
We are unable to confirm whether certain items in the property are in fully working order (i.e. gas, electric, plumbing etc.) The property is offered for sale on this basis. Prospective purchasers are advised to inspect the property and commission expert reports where appropriate. Barkers Estate Agents have a policy of seeking to obtain any copy guarantees / invoices relating to works that may have been carried out by a previous or existing owner. Please ask one of our staff members to check files for any relevant documentation that have come to our attention.
Photographs are reproduced for general information and it must not be inferred that any items shown are included in the sale with the property.
MONEY LAUNDERING
Under the Protection Against Money Laundering and the Proceeds of Crime Act 2002, we must point out that any successful purchasers who are proceeding with a purchase will be asked for identification i.e. passport or driving licence or recent utility bill....
DISCLAIMER
Some of the photographs on the brochure were taken before the current tenants moved in.

Mortgage calculator

Calculate Your Stamp Duty
£
Results
Stamp Duty To Pay:
Effective Rate:
Tax Band % Taxable Sum Tax

Gaul Street, Leicester

Struggling to find a property? Get in touch and we'll help you find your ideal property.

Interested in viewing this property?
Book a Viewing
Main menu