1 bedroom Terraced House Sold STC

Foxhill Drive, Glen Parva, Leicester

£170,000 | SSTC

1 Bedrooms
1 Bathrooms
1 Receptions

Leicester (Barkers, Queens Rd)

79 Queens Road, 
Leicester, 
LE2 1TT
Standout Features

Property Description
A well presented ONE BEDROOM quarter house in a sought after CUL DE SAC location close to the Glen Parva nature reserve, Everards Meadows, and Fosse Park.

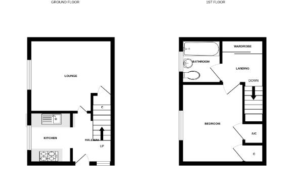
The accommodation comprises an entrance hall, lounge, kitchen on the ground floor, on the first floor there is a landing with storage, bedroom and bathroom.

Outside there is a private enclosed garden and an allocated off street parking space.

Well located with easy access to Leicester city Centre.

VIEWING IS RECOMMENDED - CALL BARKERS NOW ON 0116 2709394

ENTRANCE HALLWAY
Double glazed front door, staircase rising to first floor landing, radiator, fuse box, double glazed patterned window to front aspect, wooden door leading into lounge.

LOUNGE
3.65 x 3.19 (11'11" x 10'5") - Under stairs cupboard, radiator, double glazed window to side aspect.

KITCHEN
2.18 x 1.79 (7'1" x 5'10") - Fitted units with worktops and tiled splash backs, sink with drainer, four ring gas hob oven and extractor, space for fridge freezer, plumbing for washing machine,

LANDING
Access to loft, built in double wardrobe with mirrored sliding door, wooden doors leading into bathroom and bedroom.

BEDROOM
3.49 x 2.68 (11'5" x 8'9") - Two built in cupboards, coving, radiator, double glazed window to side elevation.

BATHROOM
1.89 x 1.73 (6'2" x 5'8") - Bath with electric shower, low level W/C, vanity unit, heated towel rail, part tiled walls, spot lights, double glazed frosted window to side aspect.

GARDEN
Fenced garden, partly paved with decking area, borders and gate to the front.

To the front of the property you have a side pebbled area and a low level fence.

OTHER ASPECT

FREE VALUATION
Thinking of selling? We would be delighted to provide you with a free market appraisal/valuation of your own property. Please contact Barkers to arrange a mutually convenient appointment on Tel: 0116 270 9394

GENERAL REMARKS
We are unable to confirm whether certain items in the property are in fully working order (i.e. gas, electric, plumbing etc.) The property is offered for sale on this basis. Prospective purchasers are advised to inspect the property and commission expert reports where appropriate. Barkers Estate Agents have a policy of seeking to obtain any copy guarantees / invoices relating to works that may have been carried out by a previous or existing owner. Please ask one of our staff members to check files for any relevant documentation that have come to our attention.
Photographs are reproduced for general information and it must not be inferred that any items shown are included in the sale with the property.
MONEY LAUNDERING
Under the Protection Against Money Laundering and the Proceeds of Crime Act 2002, we must point out that any successful purchasers who are proceeding with a purchase will be asked for identification i.e. passport or driving licence or recent utility bill. This evidence will be required prior to solicitors being instructed in the purchase of the sale of a property.
MORTGAGES
Barkers Estate Agents offer the services of an independent mortgage and financial adviser. Please ask an advisor for further information.
VIEWING TIMES
Viewing strictly by appointment through Barkers Estate Agents.
Hours of Business:
Monday to Friday 9am -5pm
Saturday 9am - 4pm

Additional Information
Council Tax Band:
A
Rooms
ENTRANCE HALLWAY
Double glazed front door, staircase rising to first floor landing, radiator, fuse box, double glazed patterned window to front aspect, wooden door leading into lounge.
LOUNGE
Under stairs cupboard, radiator, double glazed window to side aspect.
KITCHEN
Fitted units with worktops and tiled splash backs, sink with drainer, four ring gas hob oven and extractor, space for fridge freezer, plumbing for washing machine,
LANDING
Access to loft, built in double wardrobe with mirrored sliding door, wooden doors leading into bathroom and bedroom.
BEDROOM
Two built in cupboards, coving, radiator, double glazed window to side elevation.
BATHROOM
Bath with electric shower, low level W/C, vanity unit, heated towel rail, part tiled walls, spot lights, double glazed frosted window to side aspect.
GARDEN
Fenced garden, partly paved with decking area, borders and gate to the front.

To the front of the property you have a side pebbled area and a low level fence.
OTHER ASPECT
FREE VALUATION
Thinking of selling? We would be delighted to provide you with a free market appraisal/valuation of your own property. Please contact Barkers to arrange a mutually convenient appointment on Tel: 0116 270 9394
GENERAL REMARKS
We are unable to confirm whether certain items in the property are in fully working order (i.e. gas, electric, plumbing etc.) The property is offered for sale on this basis. Prospective purchasers are advised to inspect the property and commission expert reports where appropriate. Barkers Estate Agents have a policy of seeking to obtain any copy guarantees / invoices relating to works that may have been carried out by a previous or existing owner. Please ask one of our staff members to check files for any relevant documentation that have come to our attention.
Photographs are reproduced for general information and it must not be inferred that any items shown are included in the sale with the property.
MONEY LAUNDERING
Under the Protection Against Money Laundering and the Proceeds of Crime Act 2002, we must point out that any successful purchasers who are proceeding with a purchase will be asked for identification i.e. passport or driving licence or recent utility bill....

Mortgage calculator

Calculate Your Stamp Duty
£
Results
Stamp Duty To Pay:
Effective Rate:
Tax Band % Taxable Sum Tax

Foxhill Drive, Glen Parva, Leicester

Struggling to find a property? Get in touch and we'll help you find your ideal property.

Interested in viewing this property?
Book a Viewing
Main menu